Rental property Nieuw-Vennep

Beethovenlaan 70, Nieuw-Vennep

Quick summary

Location
Nieuw-Vennep
Rental price
€937.68
Property type
Appartement
Area:
75 m2
Rooms:
3
Beds:
2
Waiting time:
(not set)
Date available:
Feb 27, 2026
Maximum income:
(not set)
Status:
Published
Respond

Property description

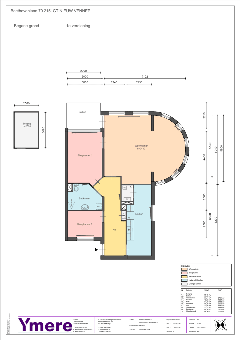
Driekamer corridorflat op de 1e etage voor senioren 55+ met een balkon in Nieuw-Vennep-Getsewoud-ZuidWoningCorridorflatWoonkamer met een half open keukenBadkamer en toilet samenWasmachine-aansluiting in de badkamerWel bovenburenBalkonBergingLift aanwezigGeschikt voor maximaal 2 personenBijzonderhedenSeniorenwoning 55+Inwonende kinderen zijn niet toegestaanOpleverdatum is onder voorbehoudStaat van de woningYmere levert iedere woning op met basiskwaliteit: schoon, heel en veilig.Wat moet u aan de woning doen?Houd er rekening mee dat u zelf nog het een en ander moet doen om de woning naar uw smaak te maken. Denk hierbij aan het leggen van ondervloeren en vloeren (minimaal 10 decibel reducerend), schilderen en behangen van de wanden en plafondsOvernameDe vertrekkende bewoner biedt ter overname aan:gratis ter overname: raamdecoratie, laminaat. afzuigkap, twee kasten en vlonders op de balkonOp de overnames kunnen geen rechten worden ontleend. Bij defect worden ze voor de oplevering door Ymere verwijdert. Bij eventuele toekomstige gebreken zijn de kosten voor de huurder zelf. Bij ondertekening van de huurovereenkomst bent u automatisch eigenaar. Ymere voert hier geen werkzaamheden aan uit.In de buurtOV; op 10 min loopafstand de bushalteScholen; in directe omgevingWinkels; in het winkelcentrum van HoofddorpSupermarkt; in het winkelcentrum van Nieuw VennepHoreca; in het winkelcentrum van HoofddorpParken; Voor de deurDiverse uitvalswegenGratis parkerenVereniging van Eigenaren (VvE)Deze woning ligt in een gebouw waar niet alleen huurwoningen zijn. Er wonen en/of werken ook eigenaren van een woning of bedrijfsruimte. Dit heet een VvE. Ymere is één van de eigenaren in de VvE. In een VvE zorgen de eigenaren samen voor het onderhoud en beheer van het gebouw. Als huurder moet u zich houden aan de regels van de VvE. Lees hier meer over het wonen in een VvE: informatiefolder wonen in een VvEVerzamel alvast uw gegevensKrijgt u een uitnodiging om deze woning te bekijken en wilt u komen kijken? Verzamel dan alvast uw gegevens voor Ymere. Want als u de woning komt bekijken en daarna laat weten dat u deze wilt huren, moet uuw gegevensde volgende werkdag voor 12.00 uur aanleveren. Ook als u niet kandidaat nummer 1 bent levert u de gevraagde documenten in! Kijk oponze websiteof indeze folder wat u moet aanleveren. Levert u uw gegevens niet op tijd aan? Dan krijgt u geen aanbod. U kunt de woning niet meer huren.Een intakegesprek kan onderdeel zijn van de toewijzingsprocedure. Na het gesprek hoort u van ons of wij u de woning toewijzen.BezichtigingKandidatennummer 1 t/m 10 worden uitgenodigd voor een bezichtiging op9 maart 2026.  u geen uitnodiging heeft dan kan u niet komen bezichtigen. Deze datum is onder voorbehoud u krijgt een notificatie per mail als de datum wijzigt.Tot slotDe oplevering van de woning kan afwijken van de advertentietekst, de plattegrond, de foto’s en de bezichtiging in verband met eventuele werkzaamheden.Aan deze advertentie kunt u geen rechten ontlenen

Map