Rental property Uithoorn

Fokkemast 53, Uithoorn

Quick summary

Location
Uithoorn
Rental price
€647.19
Property type
Hoekwoning
Area:
50 m2
Rooms:
3
Beds:
2
Waiting time:
(not set)
Date available:
May 3, 2023
Maximum income:
€39.055.00
Status:
Expired

Property description

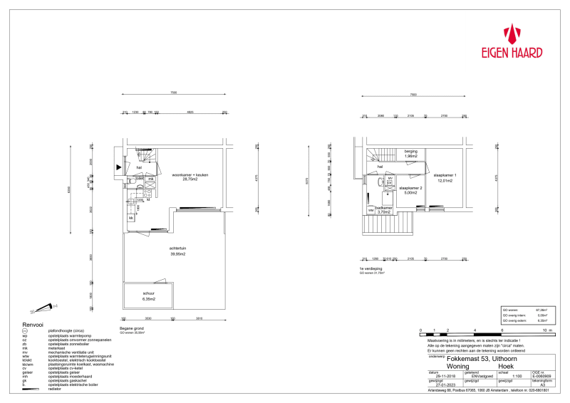
COVID - Coronavirus Eigen Haard vraagt haar klanten tijdens de bezichtiging van een woning rekening te houden met elkaar en respect te hebben voor anderen die afstand willen houden. ___________________________________________________________________________ Kenmerken: Deze woning ligt in een gebied nabij Schiphol. Hierdoor kunt u (mogelijke) geluids- en milieuoverlast ervaren. Jongerenwoningen Voor deze woning wordt een tijdelijk contract afgesloten, met een looptijd van maximaal 5 jaar. Bij deze jongerenwoning geldt dat er minimaal 1 en maximaal 2 personen mogen wonen. Huishoudens van 3 of meer personen kunnen hierdoor niet worden toegewezen. Daarnaast zijn huishoudens met kinderen in deze woning niet toegestaan. Een jongerencontract wordt slechts afgesloten t t de leeftijd van 28 jaar. Als men 28 wordt n het reageren op de woning maar v r het tekenen van de huurovereenkomst komt men niet in aanmerking. De woning Woonkamer met open keuken Toilet in de hal op de begane grond Aparte badkamer op de 1e verdieping Wasmachine- aansluiting in de badkamer Lichte woning Tuin op oosten Berging in de tuin In de buurt Winkelcentrum Amstelplein (ongeveer 10 minuten lopen) Openbaar vervoer (ongeveer 10 minuten lopen) Gezellige wandelboulevard met verschillende caf s en restaurants (ongeveer 10 minuten lopen) Let op: woningkenmerken, plattegrond en huurprijs zijn nog onder voorbehoud. Klik hier voor meer informatie: https://www.woningnetregioamsterdam.nl/Nieuws/Huurprijzen%20onder%20voorbehoud%20bij%20Eigen%20Haard Technische staat Eigen Haard levert iedere woning op met basiskwaliteit: schoon, heel en veilig. Voor meer informatie kijkt u op onze site: https://www.eigenhaard.nl/weten-en-regelen/sociale-huur/nieuwe- huurders/oplevering#F4BBB11819D44A4184749E7F8DD30BD7 Houd er rekening mee dat u zelf nog het n en ander moet doen om de woning naar uw smaak te maken. Denk hierbij aan het leggen van een ondervloer/vloer (minimaal 10 decebel reducerend), afstomen van behang: opnieuw behangen of schilderen van de muren. Schilderen van deuren, (raam)kozijnen en plafonds. Wilt u de woning huren? Voor meer informatie over welke documenten u nog meer moet inleveren op het moment dat u eerste kandidaat wordt voor de woning, kijkt u op onze website: https://www.eigenhaard.nl/weten-en-regelen/sociale-huur/nieuwe- huurders/acceptatie-en-toewijzing . Voorwaarden: Inkomensverklaring verplicht Een verklaring geregistreerd inkomen of een definitieve aanslag inkomstenbelasting van de Belastingdienst van u en alle meeverhuizende personen (behalve kinderen) is verplicht. Deze moet van het voorgaande jaar zijn, of als deze nog niet beschikbaar is, van het jaar daarvoor. Vraag uw inkomensverklaring direct aan door in te loggen op Mijn Belastingdienst of via de Belastingtelefoon (0800-0543). De corporatie controleert uw inkomen bij de toewijzing en wil uw inkomensverklaring(en) altijd ontvangen, ook als er geen bedrag op staat. Zorg ervoor dat het inkomen in uw inschrijving klopt. Anders loopt u het risico dat de corporatie u afwijst als u eerste kandidaat wordt. Jongerencontract Voor deze woning wordt een tijdelijk contract afgesloten, met een maximale looptijd van vijf jaar . U krijgt na toewijzing een nieuwe inschrijving, met behoud van uw inschrijfduur. Binnen vijf jaar moet u zelf een andere woning hebben gevonden. Let op: als u en/of uw mede-inschrijver op moment van huuringang 28 jaar of ouder is, kunnen wij u geen huurovereenkomst aanbieden!

Map