Rental property Uithoorn

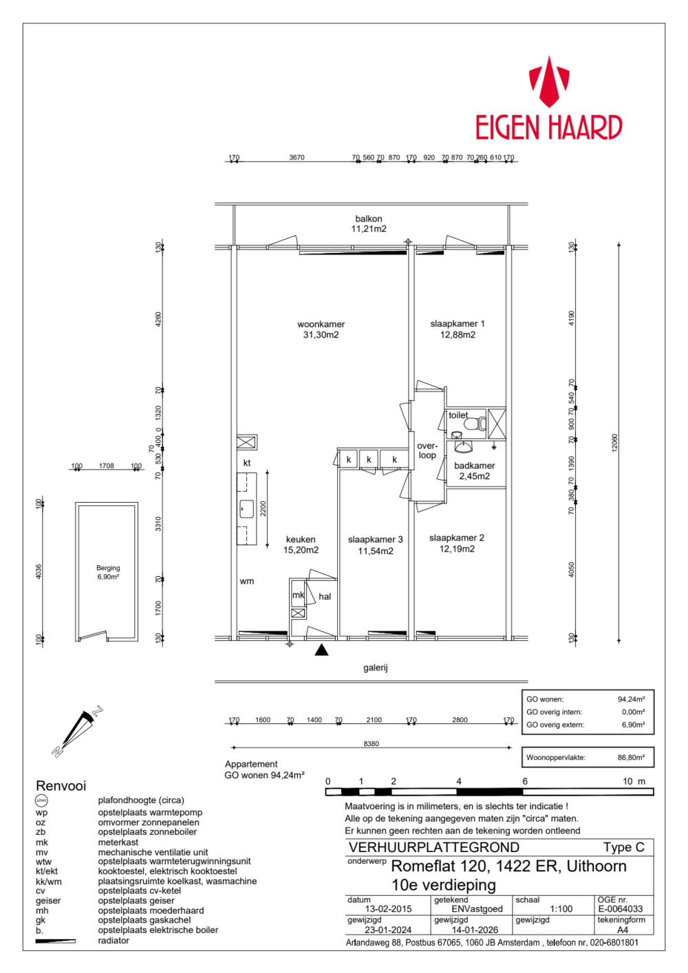
Romeflat 120, Uithoorn

Quick summary

Location
Uithoorn
Rental price
€957.10
Property type
Appartement
Area:
85 m2
Rooms:
4
Beds:
3
Waiting time:
(not set)
Date available:
Feb 6, 2026
Maximum income:
(not set)
Status:
Published
Respond

Property description

Kenmerken:Deze woning ligt in een gebied nabij Schiphol. Hierdoor kunt u (mogelijke) geluids- en milieuoverlast ervaren.Ter overname: laminaat (geen onderhoud door Eigen Haard)De woningWoonkamer met open keukenToilet in de halAparte badkamerWasmachine- aansluiting in de keukenKoken op gasServicekosten inclusief voorschot stookkosten en verbruik warm waterBalkonBerging begane grondIn de buurtBasisschoolMiddelbare schoolWinkelcentrum ZijdelwaardOpenbaar vervoerLibellebos om de hoekZijdelmeer om de hoekVerschillende speelplaatsen in de buurtLet op:woningkenmerken, plattegrond en huurprijs zijn nog onder voorbehoud. Klik hier voor meer informatie:https://www.woningnetregioamsterdam.nl/Nieuws/Huurprijzen%20onder%20voorbehoud%20bij%20Eigen%20HaardTechnische staatEigen Haard levert iedere woning op met basiskwaliteit: schoon, heel en veilig.  Voor meer informatie kijkt u op onze site:https://www.eigenhaard.nl/weten-en-regelen/sociale-huur/nieuwe-huurders/oplevering#F4BBB11819D44A4184749E7F8DD30BD7Houd er rekening mee dat u zelf nog het één en ander moet doen om de woning naar uw smaak te maken. Denk hierbij  aan het leggen van een ondervloer/vloer (minimaal 10 decebel reducerend), afstomen van behang: opnieuw behangen of schilderen van de muren. Schilderen van deuren, (raam)kozijnen en plafonds.Wilt u de woning huren?Voor meer informatie over welke documenten u nog meer moet inleveren op het moment dat u eerste kandidaat wordt voor de woning, kijkt u op onze website:https://www.eigenhaard.nl/weten-en-regelen/sociale-huur/nieuwe-huurders/acceptatie-en-toewijzing.

Map