Rental property Wormer

Faunastraat 158, Wormer

Quick summary

Location
Wormer
Rental price
€802.87
Property type
Appartement
Area:
51 m2
Rooms:
2
Beds:
1
Waiting time:
(not set)
Date available:
Dec 8, 2025
Maximum income:
(not set)
Status:
Published
Respond

Property description

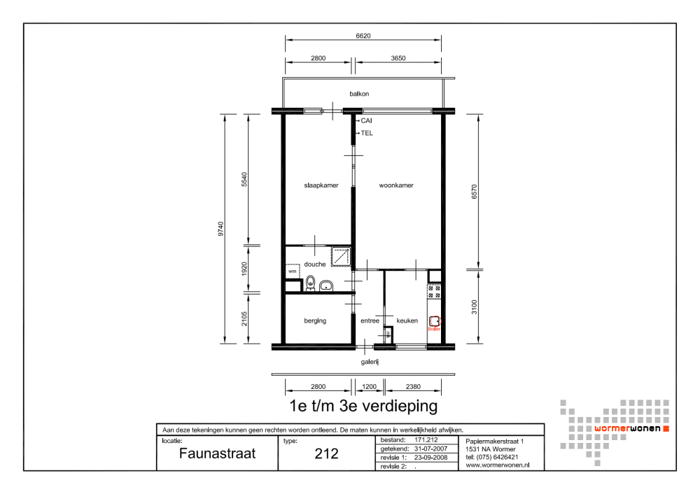
Seniorenappartement (55+) met 2 kamers op de 2everdieping, in hartje centrum van WormerToewijzingsinformatieU heeft de leeftijd van minimaal 55 jaarAls u met twee personen verhuist, dan mag de tweede persoon geen (klein)kind zijn. Is dit wel het geval dan trekken wij de aanbieding inEnergielabel & aandachtspuntenEnergielabel C, t.z.t. hogerVerduurzaamde woning: verlaging van uw energiekostenKoken op elektra; nieuwe pannen en een elektrische kookvoorziening zijn dus evt. nodigWaterverbruik en stookkosten in de maandelijkse huurprijsActiviteiten in het aangrenzende gebouw “Westertil”Deze woning is al verduurzaamd. Echter, tot ongeveer eind 2025 vinden er werkzaamheden in het flatgebouw plaats (o.a. schilderwerk en ook de verduurzaming van de overige woningen)WoningkenmerkenWoonkamer en 1 slaapkamerBergingsruimte in de woningKeuken is een aparte ruimte; u kookt op elektraDoucheruimte met toilet, douche, wastafel en wasmachineaansluitingWarmwater via een boilerBalkonEr is een gemeenschappelijke fietsenbergingHet gebouw heeft 2 liftenIn de buurtHet appartementengebouw bevindt zich middenin het winkelcentrum van Wormer.Wormer is een dorp midden in de natuur van het Wormer- en Jisperveld. Mooi gebied om in te wandelen. Wormer heeft diverse faciliteiten, alle binnen een afstand van tot 5 km. Denkt u aan winkels, basisscholen, sport(verenigingen), zwembad, horeca, theater, kinderboerderij, diverse speeltuintjes, welzijnswerk, activiteiten voor ouderen, bibliotheek, huis- en tandartsen, fysiotherapie, apotheek, openbaar vervoer (trein en bus), uitvalswegen richting Zaandam, Alkmaar en Amsterdam.VerduurzamingZonnepanelenHR++ glasEnergiezuinige waterpomp op het dak (vml. CV-ketels blijven behouden en ondersteunen de warmtepomp tijdens koude dagen)Technische staatHoud u er rekening mee dat u zelf nog wat aan de woning moet doen. Denk aan schilderen van muren en plafonds, afstomen van behang en/of leggen van een vloer.De volgende zaken heeft WormerWonen altijd voor u gedaan:De sloten (cilinders) in de buitendeuren zijn vervangenHet hang- en sluitwerk is gecontroleerd en afgesteldDe cv-installatie is bijgevuld en ontluchtDe ventilatie-ventielen en -roosters zijn gereinigd en gangbaar gemaaktDe kranen zijn gecontroleerd en gebreken verholpenDe toiletbril(len) is vervangenDe douchekop en -slang zijn vervangenDe vloeren zijn bezemschoon gemaaktHet tegelwerk is gereinigd (kalk)De keukendeurtjes en -laden zijn afgesteldOvername/overige informatieU kunt evt. roerende zaken overnemen van de vertrekkende bewoner. Wij brengen de nieuwe huurder altijd in contact met de vertrekkende bewoner om deze zaken te bespreken. De nieuwe huurder is tot niets verplicht;Als u met twee personen verhuist, dan mag de tweede persoon geen (klein)kind zijn. Is dit wel het geval dan trekken wij de aanbieding in;U kookt elektrisch; nieuwe pannen en een elektrische kookvoorziening zijn dus evt. nodig.

Map