Rental property Wormerveer

Albert Meijnsstraat 105, Wormerveer

Quick summary

Location
Wormerveer
Rental price
€947.01
Property type
Appartement
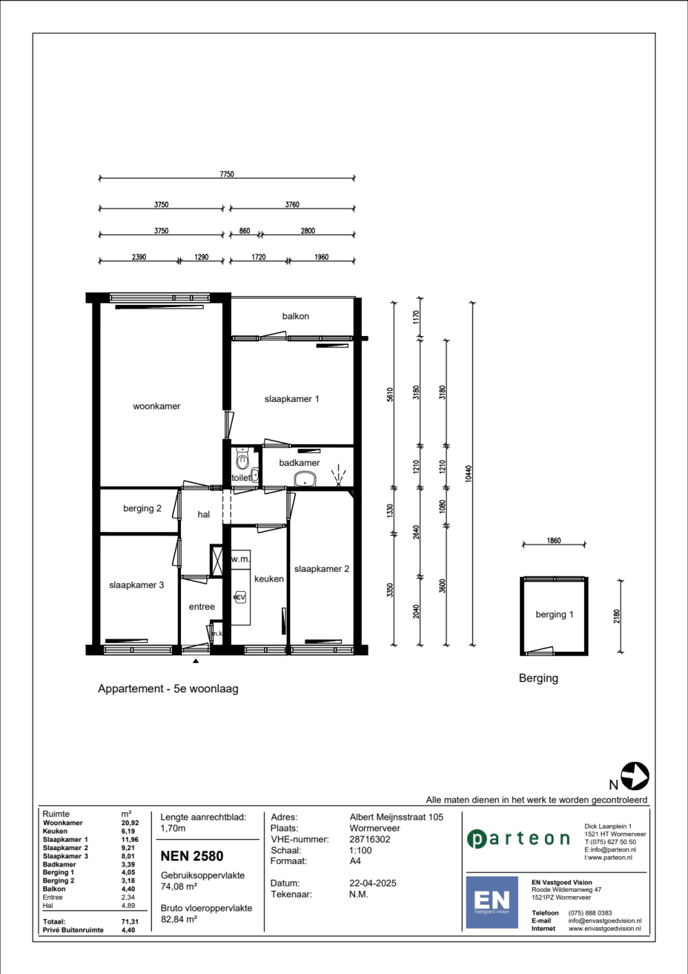
Area:
70 m2
Rooms:
4
Beds:
3
Waiting time:
(not set)
Date available:
May 8, 2025
Maximum income:
(not set)
Status:
Expired

Property description

GalerijflatCentraal gelegen in het dorp WormerveerBouwjaar 1968Het betreft een complex welke bestaande uit 3 gebouwen die voor 20% in de middenhuur verhuurd worden het overige gedeelte is sociale verhuur.U kunt geen huurtoeslag aanvragen voor deze woningWoning te bereiken via trap of liftVloertype BetonGelijkvloersGesloten keukenElektrisch koken perilex aansluiting aanwezig maximaal 7200 wattBalkon op het westenExterne berging op de begane grond1 toiletcompacte badkamerGratis parkeren voor de deurWasmachine aansluiting in de keukenGehorigheid: leef geluiden gehorig appartementHoud er rekening mee dat u zelf nog het één en ander moet doen om de woning naar uw smaak te maken. Denk hierbij aan het leggen van vloeren/ondervloeren (minimaal 10 decibel reducerend), afstomen van behang, schilderen/behangen van de muren, deuren, (raam)kozijnen en plafonds. Parteonlevert de woning aan u op volgens de basisregels: Schoon, heel en veilig.Foto's ter indicatie: de woning wordt schoon heel en veilig opgeleverdOmgevingSupermarkt op loop-fietsafstandLagere scholen op loopafstandOpenbaar vervoer op loop-fietsafstandWeids uitzichtNette bewoning gewenstLet op:woningkenmerken en plattegrond kunnen mogelijk iets afwijken van de werkelijkheid. Bijvoorbeeld omdat wij nog werkzaamheden moeten uitvoeren na de bezichtiging. De basis zoals het aantal kamers en het type woning staan vast.Aan deze advertentie kunt u geen rechten ontlenen.Huurprijs is onder voorbehoud. Deze kan nog wijzigen.

Map