Rental property Wormerveer

Dahliastraat 5, Wormerveer

Quick summary

Location
Wormerveer
Rental price
€715.57
Property type
Benedenwoning
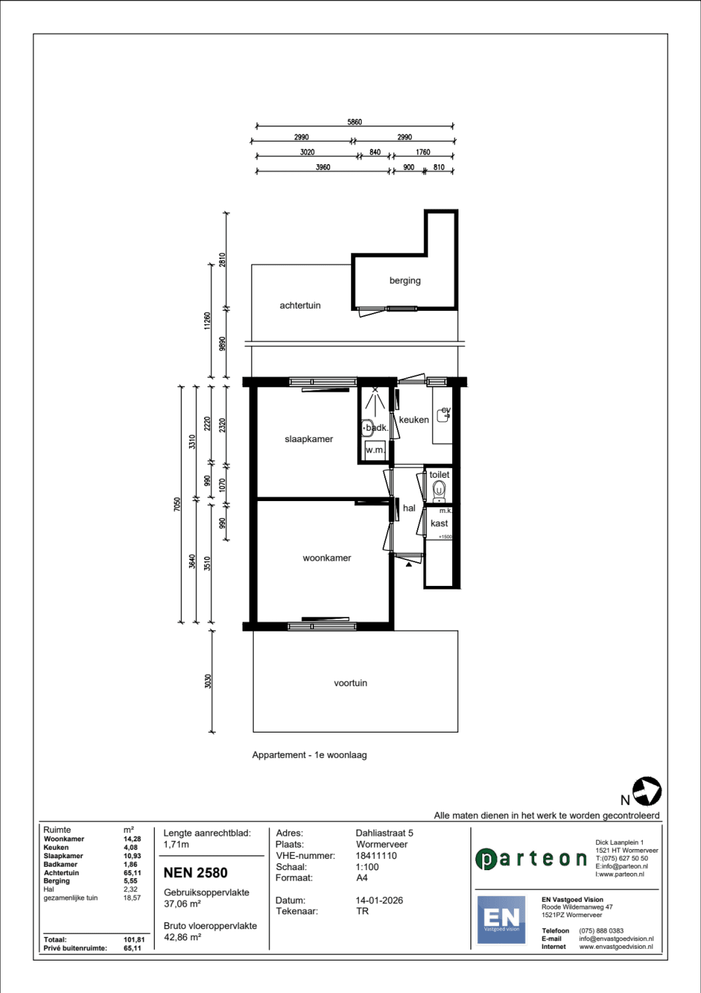
Area:
33 m2
Rooms:
2
Beds:
1
Waiting time:
(not set)
Date available:
Jan 28, 2026
Maximum income:
€39.055.00
Status:
Expired

Property description

JongerenwoningAan de Dahliastraat te Wormerveer bieden wij een jongerenwoning aan gelegen op de begane grond van een gesplitste eengezinswoning.WoningGehorigheid: gebouw uit 1949 met houten verdiepingsvloer woon en leef geluiden hoorbaar.Vorige huurder is mede verhuisd door deze geluidenBereikbaar via eigen voordeur maar gezamenlijke halGesloten keukenElektrisch koken perilex aansluiting max 7200 wattEr is een privé berging aanwezigVloertype, HoutVoor en achtertuin zijn van deze begane grond woningCompacte douche en separaat toiletWasmachine aansluiting in de badkamerGratis parkeren voor de deurHoud er rekening mee dat u zelf nog het één en ander moet doen om de woning naar uw smaak te maken. Denk hierbij aan het leggen van vloeren/ondervloeren (minimaal 10 decibel reducerend), afstomen van behang, schilderen/behangen van de muren, deuren, (raam)kozijnen en plafonds. Parteon levert de woning aan u op volgens de basisregels: Schoon en veilig.Foto's ter indicatie: afwerking kan afwijkenAls u kinderen heeft komt u niet in aanmerking voor deze woning.OmgevingWoning is centraal gelegen in het dorp WormerveerSupermarkt op loop en fietsafstandOpenbaar vervoer op loop en fietsafstandNette rustige bewoning gewenstLet op:woningkenmerken en plattegrond kunnen mogelijk iets afwijken van de werkelijkheid. Bijvoorbeeld omdat wij nog werkzaamheden moeten uitvoeren na de bezichtiging. De basis zoals het aantal kamers en het type woning staan vast.Aan deze advertentie kunt u geen rechten ontlenen.Huurprijs is onder voorbehoud. Deze kan nog wijzigen.

Map