Rental property Wormerveer

Kerkstraat 299, Wormerveer

Quick summary

Location
Wormerveer
Rental price
€935.48
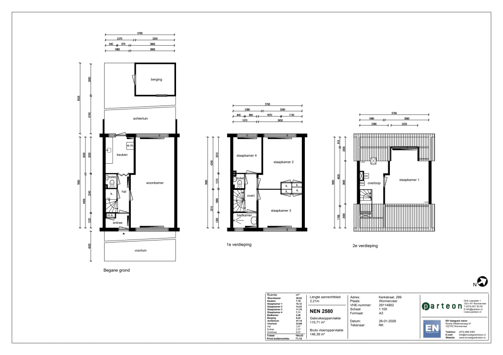
Property type
Tussenwoning
Area:
100 m2
Rooms:
5
Beds:
4
Waiting time:
(not set)
Date available:
Jan 28, 2026
Maximum income:
(not set)
Status:
Expired

Property description

TussenwoningWoningCentraal gelegen in het dorp WormerveerVloertype HoutGesloten keukenElektrisch koken perilex aansluiting aanwezig maximaal 7200 wattAchtertuin gelegen op het westenExterne berging in de tuin1 toilet op de begane grond en 1 toilet op de 1steverdiepingcompacte badkamer 1ste verdiepingGratis parkeren in de omgevingGehorigheid: leef geluiden.Houd er rekening mee dat u zelf nog het één en ander moet doen om de woning naar uw smaak te maken. Denk hierbij aan het leggen van vloeren/ondervloeren (minimaal 10 decibel reducerend), afstomen van behang, schilderen/behangen van de muren, deuren, (raam)kozijnen en plafonds. Parteonlevert de woning aan u op volgens de basisregels: Schoon en veilig.Foto's ter indicatie: afwerking kan afwijkenIndien u afwezig bent bij de bezichtiging zonder geldige reden, kunnen wij u deze woning niet toewijzen.OmgevingSupermarkt op loop-fietsafstandLagere scholen op loopafstandOpenbaar vervoer op loop-fietsafstandOnderhoud en aanleg van tuin en schuttingen zijn voor kosten van de huurderWoning ligt vlakbij een doorgaande drukke wegNette bewoning gewenstWoning is gelegen in een autoluwe straatLet op:woningkenmerken en plattegrond kunnen mogelijk iets afwijken van de werkelijkheid. Bijvoorbeeld omdat wij nog werkzaamheden moeten uitvoeren na de bezichtiging. De basis zoals het aantal kamers en het type woning staan vast.Aan deze advertentie kunt u geen rechten ontlenen.Huurprijs is onder voorbehoud. Deze kan nog wijzigen.

Map