Rental property Zaandam

Burgemeester van de Stadtstraat 21, Zaandam

Quick summary

Location
Zaandam
Rental price
€901.72
Property type
Tussenwoning
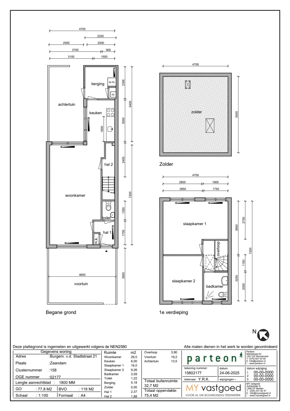
Area:
59 m2
Rooms:
3
Beds:
2
Waiting time:
(not set)
Date available:
Jul 29, 2025
Maximum income:
(not set)
Status:
Expired

Property description

Eengezinswoning in de burgemeestersbuurt van Zaandam.Woningaangebouwde berging aan de achterzijdeaangebouwde keukentuingerichte woonkamerwc op begane grondbadkamer op 1e verdieping voorzien van 2e toilet1e verdieping 2 ruime slaapkamerstuin op het noord-oostencv ketel op de zolderzolder te bereiken via vlizotraptuin aan de voorzijdeOmgevinggelegen nabij het centrum van Zaandamtreinstation op 10 minuten fietsafstandbusstop op 3 minuten loopafstandwinkels en supermarkt op 3 minuten loopafstanduitvalsweg naar Amsterdam binnen 5 minutengelegen aan rustige straatvoldoende parkeergelegenheidParteon levert iedere woning op met basiskwaliteit. Houd u er rekening mee dat u zelf nog het een en ander moet doen om de woning naar uw smaak te maken. Denk hierbij aan het leggen van een ondervloer/vloer (minimaal 10 decibel reducerend) afstomen van behang, opnieuw behangen of schilderen van muren. Schilderen van deuren, (raam) kozijnen en plafonds. Stofferen van de woning naar eigen smaak.Let op:woningkenmerken en plattegrond kunnen mogelijk iets afwijken van de werkelijkheid. Bijvoorbeeld omdat wij nog werkzaamheden moeten uitvoeren na de bezichtiging. De basis zoals het aantal kamers en het type woning staan vast.Aan deze advertentie kunt u geen rechten ontlenenHuurprijs in onder voorbehoud. Deze kan nog wijzigen.Let op gasloos koken in deze woning!Parteon installeert vanaf 1 april 2022 in alle keukens een elektrische aansluiting voor het koken op elektra en verwijderd de gas aansluiting. Het is dan niet meer mogelijk om op gas te koken. Er zijn verschillende soorten aansluitingen en mogelijkheden voor het koken op elektra. Let op bij de aanschaf van uw elektrische kookplaat of fornuis of deze geschikt is voor de aanwezige aansluiting. Informatie over het type aansluiting zal bekend gemaakt worden bij de bezichtiging of na de oplevering van de woning. (Parteon kan niet aansprakelijk gesteld worden voor verkeerd aangeschafte kookplaten of fornuizen).Voor meer informatie verwijzen we u graag naarhttps://www.rijksoverheid.nl/onderwerpen/duurzame-energie/vraag-en-antwoord/hoe-lang-kan-ik-nog-koken-op-gasFRAUDEIndien wij constateren dat documenten zijn vervalst en niet overeenkomen met de werkelijke situatie dan noemen we dat fraude. Dit geldt ook als u bewust een verkeerde voorstelling van de situatie geeft. Hier staat een zware sanctie op. De woningaanbieding wordt ingetrokken en u wordt voor de duur van één jaar geblokkeerd om via Woningnet te reageren.ZELFSTANDIG ONDERNEMERIndien u zelfstandig ondernemer bent dient u een recente definitieve aanslag of IBRI in te leveren. Als deze niet representatief of onbekend is dan dient u een voorlopige aanslag in te leveren bij Parteon. U kunt een geschatte aangifte indienen bij de Belastingdienst. U krijgt dan binnen twee weken een voorlopige aanslag van de Belastingdienst toegestuurd. Het heeft geen zin om op een woning te reageren als u deze aanslag nog niet heeft.De huur in deze advertentie is onder voorbehoud. Een intakegesprek en een betaalbaarheidstoets kunnen deel uitmaken van de toewijzingsprocedure.LET OP!Indien u kandidaat 1 wordt voor deze woning willen wij u erop wijzen dat u uw persoonlijke gegevens binnen 3 werkdagen bij Parteon dient in te leveren. Mochten de gegevens niet op tijd binnen zijn dan is Parteon genoodzaakt om de woning aan de volgende kandidaat aan te bieden.Voorwaarden:Inkomensverklaring verplichtEen verklaring geregistreerd inkomen of een definitieve aanslag inkomstenbelasting van de Belastingdienst van u en alle meeverhuizende personen (behalve kinderen) is verplicht. Deze moet van het voorgaande jaar zijn, of als deze nog niet beschikbaar is, van het jaar daarvoor.Vraag uwinkomensverklaringdirect aan door in te loggen op Mijn Belastingdienst of via de Belastingtelefoon (0800-0543). De corporatie controleert uw inkomen bij de toewijzing en wil uw inkomensverklaring(en) altijd ontvangen, ook als er geen bedrag op staat.Zorg ervoor dat het inkomen in uw inschrijving klopt. Anders loopt u het risico dat de corporatie u afwijst als u eerste kandidaat wordt.

Map