Rental property Zaandam

Conradwerf 95, Zaandam

Quick summary

Location
Zaandam
Rental price
€749.60
Property type
Appartement
Area:
46 m2
Rooms:
4
Beds:
3
Waiting time:
(not set)
Date available:
Aug 11, 2025
Maximum income:
(not set)
Status:
Expired

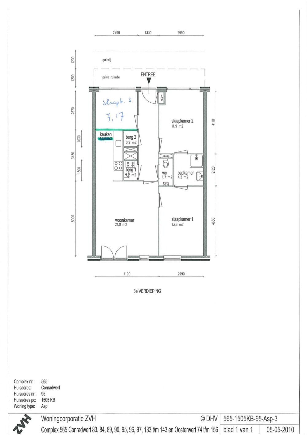
Property description

Appartement in Zaandam ZuidWoning4-kamerappartement (Voormalig 3-kamerappartement; eetkamer is afgesloten waardoor het een kleine slaapkamer is geworden)Entree.Hal.3 slaapkamers.Ruime badkamer met douche en wastafel.Apart toilet.Inpandige berging met de aansluiting voor de wasmachine.Woonkamer met aangrenzend half open keuken, met standaard keukenblokIn de onderbouw van het complex zit een parkeerkelder.Het huren van een plek is op basis van beschikbaarheid.Hier bevindt zich ook de gezamenlijke fietsenberging.Er is geen aparte berging.WoonomgevingDit bijzondere appartementencomplex is gelegen in een rustige woonwijk.Op korte afstand van het centrum van Zaandam, openbaar vervoer en een goede verbinding naar A8 - A10 richting Amsterdam.Het complex ligt wel naast een doorgaande weg.Aanvullende informatieDe woning maakt onderdeel uit van een complex met koop- en huurwoningen (VvE).Er is een huishoudelijk regelement.Bezichtiging vrijdag 1 augustus om 13 uur.

Map