Rental property Zaandam

D Doniastraat 48, Zaandam

Quick summary

Location
Zaandam
Rental price
€734.48
Property type
Tussenwoning
Area:
56 m2
Rooms:
4
Beds:
3
Waiting time:
(not set)
Date available:
Sep 1, 2025
Maximum income:
€39.055.00
Status:
Expired

Property description

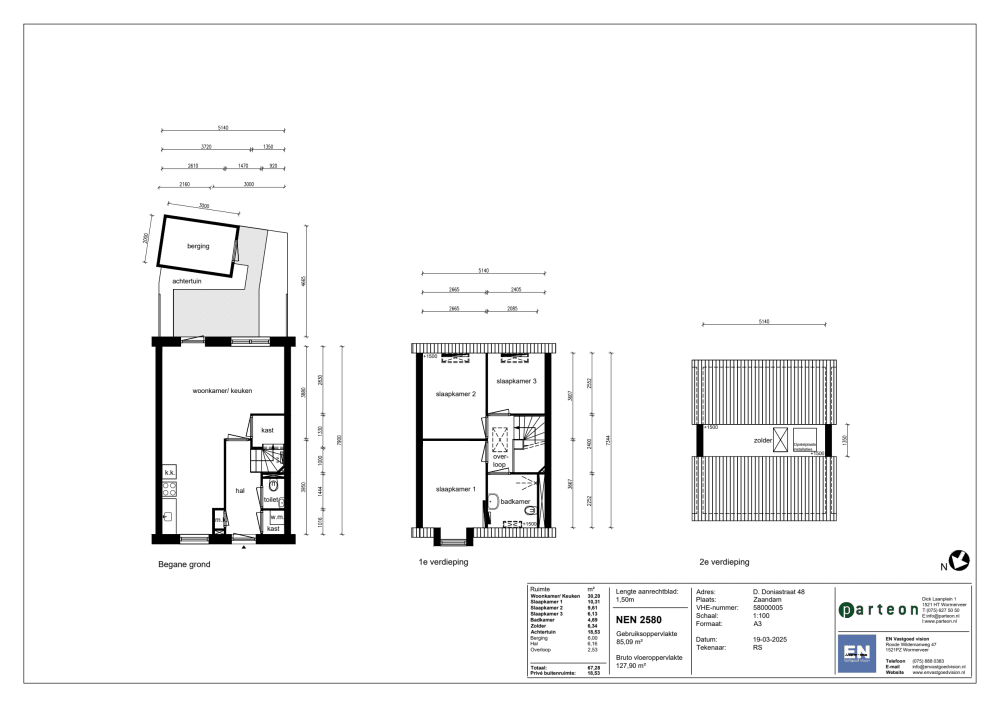
In de gezellige volksbuurt Burgemeestersbuurt te Zaandam worden de komende periode 45 nieuwe eengezinswoningen opgeleverd. Deze woningen worden door Bouwgroep Dijkstra Draaisma gebouwd.  Elke woning is voorzien van de nieuwste voorzieningen en is volledig gas loos. Het gaat hierbij om energiezuinige woningen (BENG) die voorzien zijn van goede isolatie, een paar zonnepanelen, een warmtepomp en een warmte-terugwin systeem.De tuin heeft een klein terras en een berging.Soms kunnen nieuwe woningen tijdelijk niet aangesloten worden op het energienet.Daarom is er bij deze woningen een speciaal systeem met een accu aangelegd.Dit systeem zorgt ervoor dat de woningen wél stroom hebben en je er fijn kunt gaan wonen.We vragen wel om rekening met elkaar te houden. Gebruik bijvoorbeeld geen grote apparaten tegelijk, zet de verwarming niet te hoog, en doe lampen uit als je ze niet nodig hebt.Hoe is de tijdelijke stroomvoorziening geregeld?We blijven de grote stroomaansluiting gebruiken, die we nodig hadden met de bouw van de woningen. Ook hebben we zonnepanelen op elk dak van de woningen gelegd.We verdelen met een slim systeem de stroom over de woningen en we slaan stroom op in een buurtaccu. In gevallen dat we voorspellen dat er meer stroom nodig is, kunnen we een noodaggregaat aansluiten.De kosten van deze energievoorziening zal worden verrekend met een voorschot bedrag. Tot de aansluiting aan het normale energienetwerk bent u verplicht om een contract hiervoor af te sluiten. U kunt niet zelf kiezen voor een energiemaatschappij tot de normale aansluiting.Dit systeem zal er zijn totdat de netbeheerder de woningen wel aan kan sluiten op het net.Op het moment van overzetten zal de woning 1 dag van het stroom af zijn om het normale energie netwerk te kunnen aansluiten in de woning.De bezichtiging van de woningen zullen plaatsvinden in de laatste 2 weken van augustus 2025 in een vergelijkbare woning in het project.Er zal ook nog een informatie bijeenkomst zijn in de periode na de bezichtiging over het project.De opleveringen zullen in de eerste weken van september 2025 plaats vinden.Woningopen keukentuingerichte woonkamertuin bereikbaar via woonkamertoilet in de halwasmachine in aparte ruimtebadkamer op 1e verdieping1e verdieping met 3 slaapkamersachtertuin op het Noorden met steegberging in de tuinklein terrras in de tuin met daaronder een opvang filter voor het regenwaterwarmtepompzonnepanelenOmgevinggelegen in de Burgemeester buurt van Zaandambus stop op 5 minuten loopafstandwinkels en supermarkt op 5 minuten afstanduitgaanscentrum en bioscoop op 5 minuten fietsafstandgelegen aan rustige straatvoldoende parkeergelegenheid (gratis Parkeren)school in de nabije omgevinguitvalswegen naar Amsterdam binnen 3 minuten te bereikenWoningen worden nieuwbouw opgeleverd, huurders dienen de woning zelf te voorzien van vloer en wandbekleding.tuin en tuinafscheiding dient door de huurder zelf te worden ingericht er is alleen een privacyschot geplaatst.Let op:woningkenmerken en plattegrond kunnen mogelijk iets afwijken van de werkelijkheid. Bijvoorbeeld omdat wij nog werkzaamheden moeten uitvoeren na de bezichtiging. De basis zoals het aantal kamers en het type woning staan vast.Aan deze advertentie kunt u geen rechten ontlenen.Huurprijs in onder voorbehoud. Deze kan nog wijzigen.FRAUDEIndien wij constateren dat documenten zijn vervalst en niet overeenkomen met de werkelijke situatie dan noemen we dat fraude. Dit geldt ook als u bewust een verkeerde voorstelling van de situatie geeft. Hier staat een zware sanctie op. De woningaanbieding wordt ingetrokken en u wordt voor de duur van één jaar geblokkeerd om via Woningnet te reageren.ZELFSTANDIG ONDERNEMERIndien u zelfstandig ondernemer bent dient u een recente definitieve aanslag of IBRI in te leveren. Als deze niet representatief of onbekend is dan dient u een voorlopige aanslag in te leveren bij Parteon. U kunt een geschatte aangifte indienen bij de Belastingdienst. U krijgt dan binnen twee weken een voorlopige aanslag van de Belastingdienst toegestuurd. Het heeft geen zin om op een woning te reageren als u deze aanslag nog niet heeft.De huur in deze advertentie is onder voorbehoud. Een intakegesprek en een betaalbaarheidstoets kunnen deel uitmaken van de toewijzingsprocedure.LET OP!Indien u kandidaat 1 wordt voor deze woning willen wij u erop wijzen dat u uw persoonlijke gegevens binnen 3 werkdagen bij Parteon dient in te leveren. Mochten de gegevens niet op tijd binnen zijn dan is Parteon genoodzaakt om de woning aan de volgende kandidaat aan te bieden.Voorwaarden:Inkomensverklaring verplichtEen verklaring geregistreerd inkomen of een definitieve aanslag inkomstenbelasting van de Belastingdienst van u en alle meeverhuizende personen (behalve kinderen) is verplicht. Deze moet van het voorgaande jaar zijn, of als deze nog niet beschikbaar is, van het jaar daarvoor.Vraag uwinkomensverklaringdirect aan door in te loggen op Mijn Belastingdienst of via de Belastingtelefoon (0800-0543). De corporatie controleert uw inkomen bij de toewijzing en wil uw inkomensverklaring(en) altijd ontvangen, ook als er geen bedrag op staat.Zorg ervoor dat het inkomen in uw inschrijving klopt. Anders loopt u het risico dat de corporatie u afwijst als u eerste kandidaat

Map