Rental property Zaandam

Kepplerstraat 15, Zaandam

Quick summary

Location
Zaandam
Rental price
€478.49
Property type
Benedenwoning
Area:
34 m2
Rooms:
2
Beds:
1
Waiting time:
(not set)
Date available:
Feb 19, 2025
Maximum income:
€39.055.00
Status:
Expired

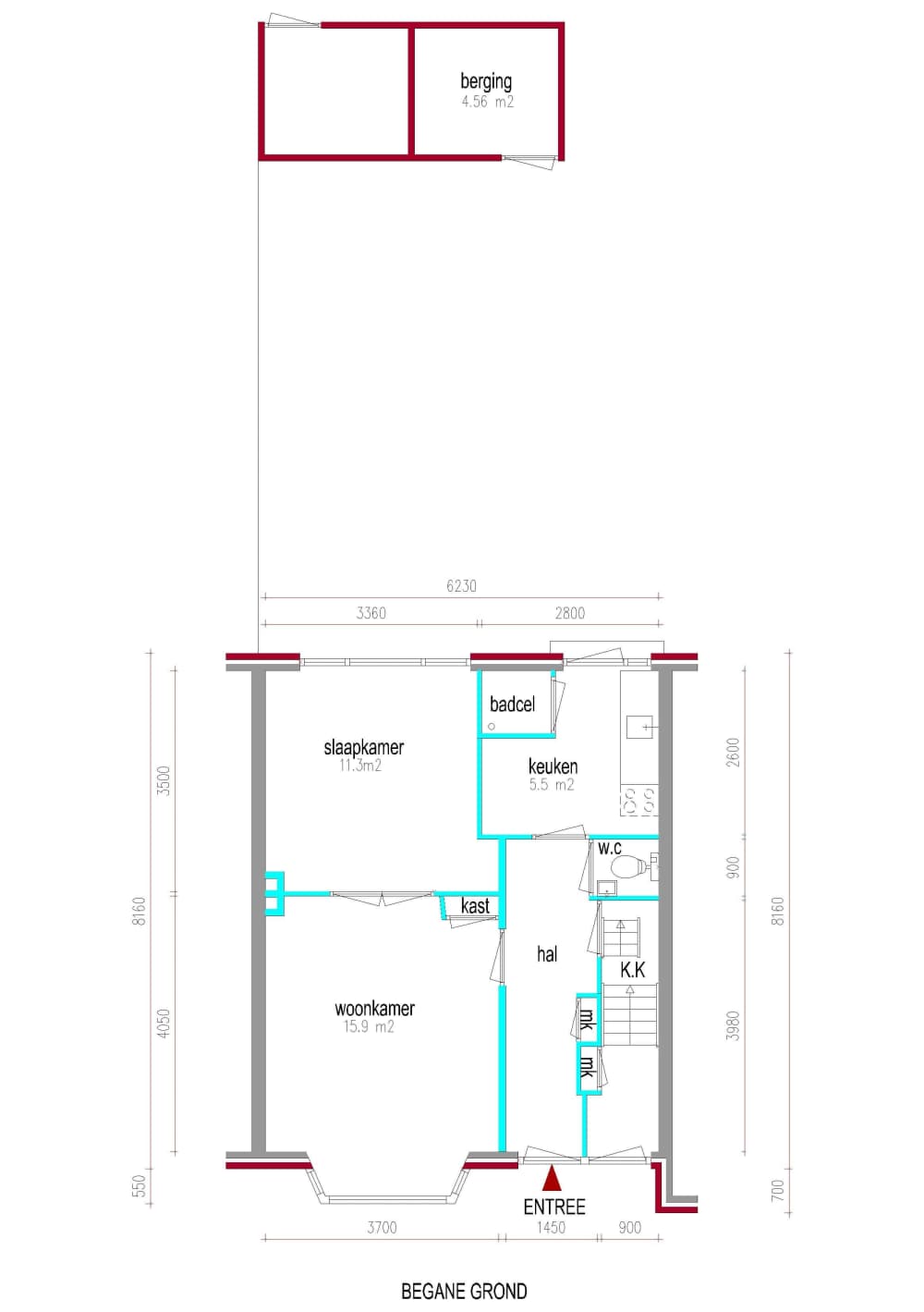
Property description

2-kamer benedenwoningWoningKleine 2-kamer woning.Entree, hal en apart toilet.Woonkamer aan de voorzijde.Slaapkamer aan de achterzijde.Woonkamer en slaapkamer zijn gescheiden d.m.v. twee openslaande deuren.Gesloten keuken.Via de keuken toegang tot zeer kleine badkamer en de tuin.Grote tuin met schuur en achterom.Wasmachineaansluiting zit in de keuken.Geen mechanische ventilatie.WoonomgevingGelegen aan drukke doorgaande weg.Nabij het centrum.Goede bereikbaarheid.Parkeren is gratis.Bushalte ligt op 2 minuten lopen.Winkelcentrum ligt op 5 minuten lopen.Aanvullende informatieAlle overige schilderwerkzaamheden (plafonds, deuren, kozijnen, wanden) zijn voor de nieuwe huurder.De woning is gehorig.Leefgeluiden van de buren kunnen te horen zijn in de woning.Een intake is onderdeel van de selectieprocedure.De bezichtiging vindt plaats op 4 maart 2025 om 11 uur.

Map