Rental property Zaandam

Koningsdiep 6, Zaandam

Quick summary

Location
Zaandam
Rental price
€744.97
Property type
Portiekwoning
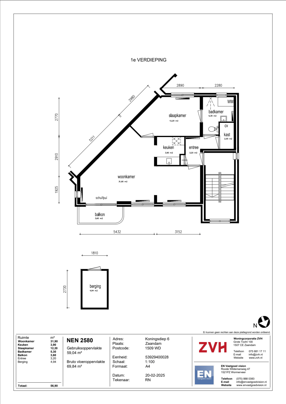
Area:
53 m2
Rooms:
2
Beds:
1
Waiting time:
(not set)
Date available:
Mar 24, 2025
Maximum income:
(not set)
Status:
Expired

Property description

WoningPortiekwoning zonder lift gelegen op de eerste verdieping.Entree.Kast met CV-ketel.Ruime woonkamer aan de achterzijde met toegang tot het balkon op het zuidoosten.Gedeeltelijk open keuken, biedt voldoende ruimte voor het plaatsen van keukenapparatuur.Slaapkamer aan de achterzijde met toegang tot de badkamer.De badkamer is voorzien van douche, wastafel, toilet en aansluiting voor de wasmachine.Op de begane grond is een berging aanwezig.WoonomgevingCentraal gelegen op 't Kalf in Zaandam.Buurtwinkelcentrum op 5 minuten lopen met supermarkten, drogisterij, apotheek, sporthal, huisarts, enz.Het recreatiegebied de Jagersplas ligt op korte afstand.De bereikbaarheid is goed door de ligging nabij uitvalswegen (A7/A8).Gratis parkeren.Bushalte op loopafstand.Aanvullende informatieEr is een nieuw keukenblok geplaatst.Elektrisch koken, 2-fase.De wanden zijn behangklaar.Bewoning door inwonende kinderen niet toegestaan.Let op! Bewoning door inwonende kinderen niet toegestaan.De bezichtiging vindt plaats op maandag 7 april om 11:00 uur.

Map