Rental property Zaandam

Lobeliusstraat 1, Zaandam

Quick summary

Location
Zaandam
Rental price
€991.37
Property type
Tussenwoning
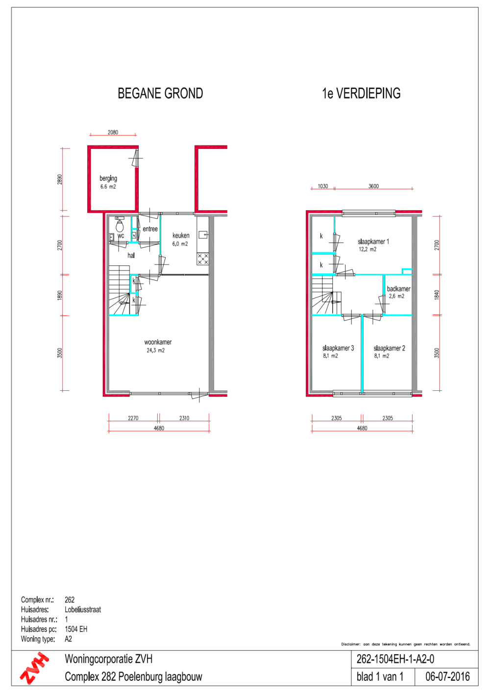
Area:
61 m2
Rooms:
4
Beds:
3
Waiting time:
(not set)
Date available:
Jan 24, 2025
Maximum income:
(not set)
Status:
Expired

Property description

Eengezinswoning in PoelenburgWoningHoekwoning.Schuur aan de voorgevel.Entree. Hal. Toilet.Woonkamer met trapkast.Toegang tot de tuin op het westen.Half open keuken aan de voorzijde met aansluiting voor de wasmachine.Op de 1e verdieping zijn 3 slaapkamers met vaste kasten en daar tussen gelegen de badkamer.Er isgeen2e toilet in de badkamer.Er is geen zolder, de woning heeft een plat dak.OmgevingDe woning is gelegen in Poelenburg.Een wijk met verschillende nationaliteiten.Gevarieerd winkelaanbod.De wijk is ruim en groen opgezet.Dichtbij het recreatiegebied het Twiske of het Darwinpark.Voorzieningen zijn op loopafstand.De bereikbaarheid is goed.Parkeren is gratis in de wijk.Met de bus ben je binnen 10 minuten bij het station van Zaandam.Het stadshart van Zaandam kent een groot en gevarieerd winkel- en horeca aanbod.Aanvullende informatieDe keuken, badkamer en het toilet zijn gerenoveerd.Alle wanden zijn behangklaar gestuct.Schilder werkzaamheden zijn voor de nieuwe bewoner.De bezichtiging vindt plaats op 6 februari 2025 om 14:00 uur.Toewijzing en bijzonderheden:Let op! Is er sprake van co-ouderschap, dat dient u een gelegaliseerde overeenkomst/zorgplan aan te tonen.U dient minimaal 4x de netto huurprijs bruto ter verdienen per maand.Huurovereenkomst voor onbepaalde tijd met een minimum van één jaar.Jaarlijkse huurverhoging.Een creditcheck, intakegesprek en contact met uw werkgever behoren tot de selectieprocedure.Administratiekosten bij het afsluiten van het huurcontract: € 56,50.Waarborgsom (1 maand netto huur).Extra voorwaarden Poelenburg en PeldersveldDe gemeente Zaanstad wil de leefbaarheid en kansen voor de bewoners in Poelenburg enPeldersveld vergroten. Om dat te bereiken, heeft de gemeente een aantal maatregelen genomen,waaronder de voorrangsregeling voor nieuwe bewoners. Wanneer een woningzoekende aanbepaalde kenmerken voldoet, maakt hij of zij meer kans op een huurwoning.Een onderzoek door de politie naar uw verleden en die van de meeverhuizende personen vanaf 16jaar maakt onderdeel uit van de selectieprocedure. Staat iemand slecht bekend bij de politievanwege crimineel gedrag en/of overlast, dan komt u niet in aanmerking voor een huurwoning inPoelenburg en Peldersveld.

Map