Rental property Zaandam

Madeira 18, Zaandam

Quick summary

Location
Zaandam
Rental price
€733.22
Property type
Tussenwoning
Area:
69 m2
Rooms:
4
Beds:
3
Waiting time:
(not set)
Date available:
Jul 24, 2025
Maximum income:
€39.055.00
Status:
Expired

Property description

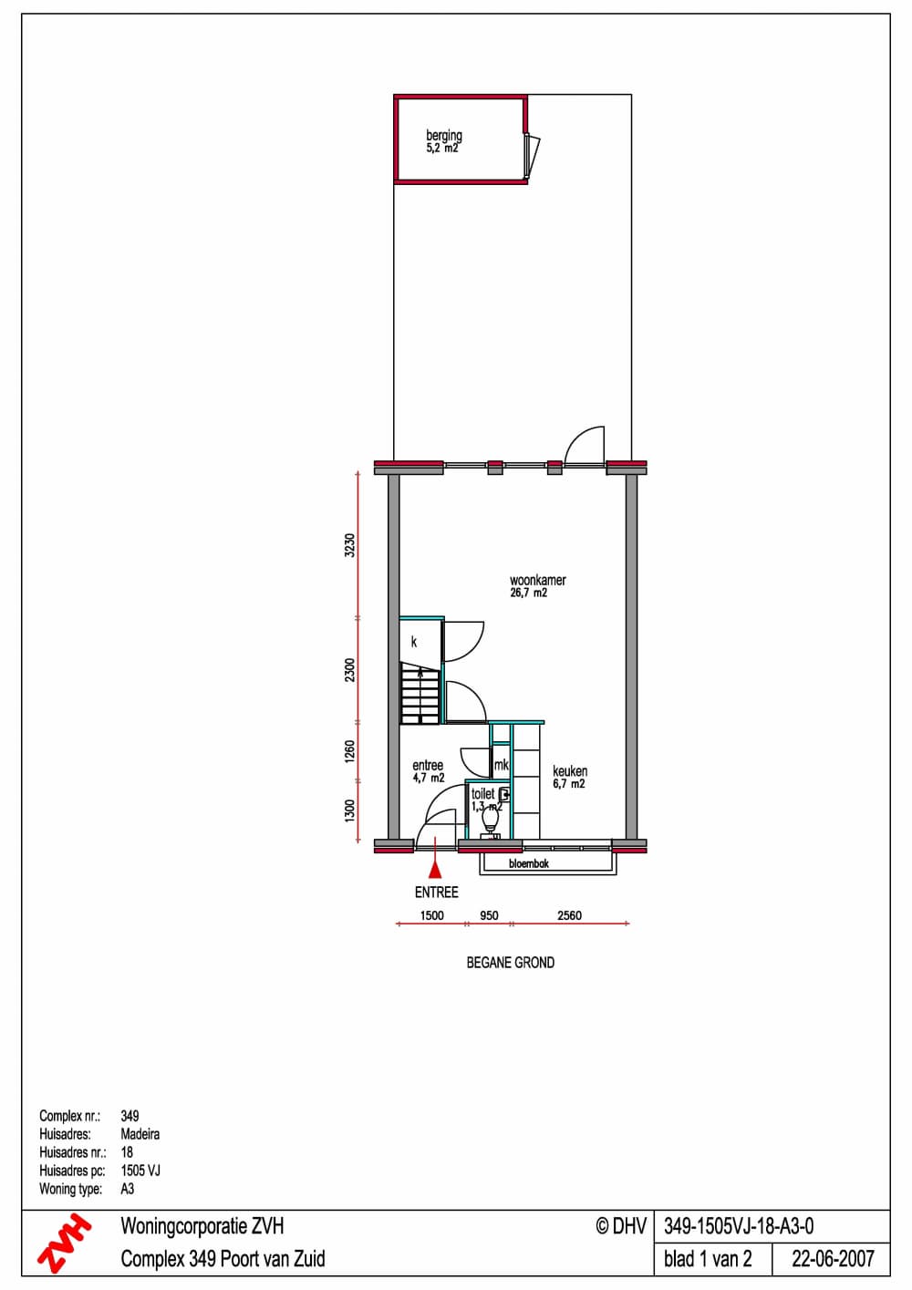
Eengezinswoning in Zaandam Zuid**voorrang voor Zaanse doorstromers*WoningEntree.Hal.Toilet.Trapopgang.Woonkamer aan de achterzijde met toegang tot achtertuin op het westen.De tuin is voorzien van schuur en achterom.De open keuken ligt aan de voorzijde.Standaard keuken.Op de eerste verdieping zijn 3 slaapkamers.De badkamer is voorzien van douchehoek, wastafel, en aansluiting voor de wasmachine.De woning heeft een plat dak, er is geen zolder.WoonomgevingEengezinswoning gelegen in de Poort van Zuid in Zaandam.In de directe omgeving zijn geen winkels op loopafstand.Dichtstbijzijnde supermarkt ligt op 5-10 minuten fietsen.De bereikbaarheid is goed door de ligging nabij uitvalswegen en openbaar vervoer.De A8/A10 ligt op 5 minuten rijden en er is gratis parkeren.Een rechtstreekse bus naar Amsterdam centraal, Station Amsterdam Noord (metro), Zaandam centraal en Zaanse schans stopt op loopafstand.Er rijdt ook een nachtbus.Het is een kindvriendelijke wijk met scholen en voldoende speelgelegenheden.Een park ligt op 5 minuten fietsen.Aanvullende informatieWoning is met voorrang voor Zaanse doorstromers.Bezichtiging zal plaatsvinden op dinsdag 2 september om 14 uur.

Map