Rental property Zaandam

Perim 293B, Zaandam

Quick summary

Location
Zaandam
Rental price
€923.57
Property type
Appartement
Area:
45 m2
Rooms:
2
Beds:
1
Waiting time:
(not set)
Date available:
Jul 21, 2025
Maximum income:
(not set)
Status:
Expired

Property description

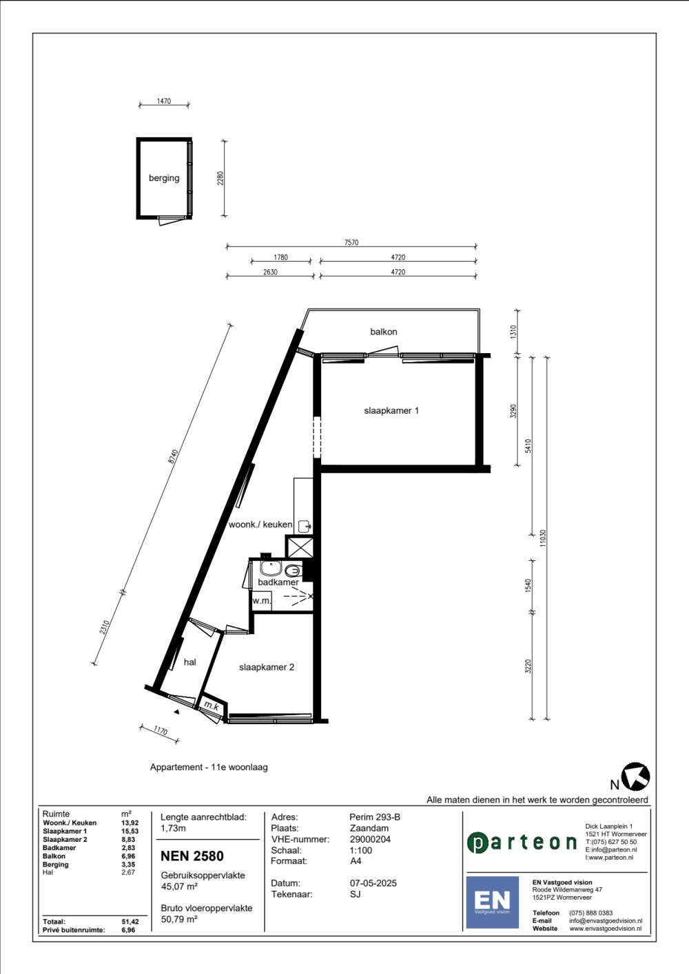
klein appartement op de 12e verdieping van het complex gelegen in Peldersveld.woonkamer aan achterzijde (op tekening slaapkamer 1)open keukenslaapkamer aan galerijzijdetoilet in badkamer, wasmachine aansluitingbalkon gelegen op het Oostenberging op de begane grondafgesloten galerijcamera bewaking in hal en liftvoorschot water en stookkosten in servicekostenwoning geschikt voor 1 persoonOmgevingcomplex voorzien van diverse liftenafgesloten galerijwinkelcentrum op 5 minuten loopafstandscholen in de directe omgevingbushalte aan achterzijde van het complexspeeltuin voor het complexhuisarts in directe omgevingtoegangswegen naar Amsterdam en Purmerend binnen 3 minuten bereikbaarziekenhuis op 5 minuten fietsafstandtreinstation op 10 minuten fietsafstandLet op:woningkenmerken en plattegrond kunnen mogelijk iets afwijken van de werkelijkheid. Bijvoorbeeld omdat wij nog werkzaamheden moeten uitvoeren na de bezichtiging. De basis zoals het aantal kamers en het type woning staan vast.Aan deze advertentie kunt u geen rechten ontlenen.Huurprijs in onder voorbehoud. Deze kan nog wijzigen.foto's en plattegrond kunnen afwijken.Voorrang voor maatschappelijke beroepen in Poelenburg en PeldersveldDe woningcorporaties in Zaanstad wijzen vrijgekomen huurwoningen in Poelenburg en Peldersveld sinds begin 2018 met voorrang toe aan mensen die voldoen aan voorwaarden. Met de voorrangsregels wil de gemeente Zaanstad van Poelenburg en Peldersveld meer kansrijke wijken maken. In maart 2022 is de wet in Poelenburg en Peldersveld verlengd en iets aangepast. Met name voor mensen die al in Poelenburg en Peldersveld wonen zijn er wat regels aangepast.Waarom zijn er voorrangsregels?De gemeente Zaanstad wil de leefbaarheid en kansen voor de bewoners in Poelenburg en Peldersveld vergroten. Om dat te bereiken, neemt de gemeente een aantal maatregelen. Een van deze maatregelen is de voorrangsregeling voor nieuwe bewoners. Wanneer een woningzoeker aan bepaalde kenmerken voldoet, maakt hij of zij meer kans op een huurwoning.Wat betekent dit voor huidige bewoners van Poelenburg en Peldersveld?Voor mensen die nu in Poelenburg en Peldersveld wonen, verandert er niets. Iedereen die er nu woont, mag er gewoon blijven wonen. Ook als u binnen deze wijken wilt verhuizen, dan hoeft u geen gebruik te maken van de voorrangsregeling. Dit is nieuw. Vanaf de verlenging in maart 2022 is uw bron van inkomsten niet meer relevant als u al in Poelenburg en Peldersveld woont. Wel wordt nog steeds het onderzoek door de politie gedaan, met uitzondering van de uitzonderingsdoelgroepen zoals stadsvenieuwingsurgenten uit Poelenburg en Peldersveld.Wie krijgt voorrang?Iedereen kan reageren op beschikbare huurwoningen in Poelenburg en Peldersveld. Woningzoekers, die nu niet in Poelenburg en Peldersveld wonen, krijgen voorrang als zij voldoen aan enkele voorwaarden. Zo krijgt u voorrang als u inkomen heeft uit arbeid, pensioen, AOW of studiefinanciering. Daarnaast kunt u voorrang krijgen met een startkwalificatie.Zie hieronder de 3 soorten voorrang:U heeft betaald werk bij een maatschappelijke organisatie, overheid, in de zorg of onderwijs.U heeft betaald werk bij een commerciële (niet-maatschappelijke) organisatie of u ontvangt studiefinanciering of AOW.U heeft een startkwalificatie. Dat betekent dat u een van de volgende diploma's heeft: mbo niveau 2 of hoger, havo of vwo.De voorwaarden staan in volgorde van belangrijkheid. Nummer 1 telt zwaarder mee dan nummer 2, nummer 2 telt zwaarder mee dan nummer 3. Wanneer kandidaten dezelfde voorrang hebben, gaat de kandidaat met de langste inschrijfduur voor.Wat is een maatschappelijke organisatie?U werkt bij een maatschappelijke organisatie wanneer uw organisatienietis gericht op het maken van winst. Uw organisatie is dan een overheidsinstelling, stichting of vereniging.Werkt u bij een eenmanszaak, vennootschap onder firma (vof), naamloze vennootschap (nv) of besloten vennootschap (bv)? Dan is uw organisatie commercieel. Vraag daarom altijd bij uw werkgever na welkerechtsvormuw organisatie heeft.Let op!Sommige organisaties doen maatschappelijk werk, maar zijn in feite commercieel. Een voorbeeld is het fictieve kinderdagverblijf Bengel B.V. Hoewel het kinderdagverblijf een maatschappelijke rol heeft, is de organisatie wel een bv en gericht op het maken van winst. Het kinderdagverblijf is daarom een commerciële organisatie. Is het kinderdagverblijf een stichting? Dan is het verblijf een maatschappelijke organisatie.Hoe krijg ik voorrang?In uw persoonlijke profiel op WoningNet kunt u aangeven aan welke voorwaarde u voldoet om voorrang te krijgen.Login op uw profiel op WoningnetGa naar Mijn gegevens (rechtsboven in menubalk)Ga naar het kopje Mijn profielKijk onder Voorrangsregelingen en selecteer dehoogsteregel die voor u geldt.Sla uw keuze op.Uiteraard controleren we bij de voorlopige toewijzing of de voorrang juist is.Woont u op dit moment al in Poelenburg of Peldersveld dan krijgt u automatisch de hoogste voorrang. Daar hoeft u dus verder niets meer voor te doen.Let opuw huidige adresgegevens in uw WoningNet-inschrijving moeten juist zijn.Wat houdt het politieonderzoek in?De politie stelt een onderzoek in wanneer u met de nieuwe voorrangsregels de eerste kandidaat bent geworden. Dit onderzoek geldt voor u en alle overige personen van uw huishouden die 16 jaar en ouder zijn. Zonder het onderzoek komt u niet in aanmerking voor een huurwoning in Poelenburg en Peldersveld.Meer informatieHeeft u na het lezen van deze informatie toch nog vragen? Ga dan naar dewebsitevan de gemeente Zaanstad.Let op:woningkenmerken en plattegrond kunnen mogelijk iets afwijken van de werkelijkheid. Bijvoorbeeld omdat wij nog werkzaamheden moeten uitvoeren na de bezichtiging. De basis zoals het aantal kamers en het type woning staan vast.Aan deze advertentie kunt u geen rechten ontlenen.Huurprijs in onder voorbehoud. Deze kan nog wijzigen.Let op gasloos koken in deze woning!Parteon installeert vanaf 1 april 2022 in alle keukens een elektrische aansluiting voor het koken op elektra en verwijderd de gas aansluiting. Het is dan niet meer mogelijk om op gas te koken. Er zijn verschillende soorten aansluitingen en mogelijkheden voor het koken op elektra. Let op bij de aanschaf van uw elektrische kookplaat of fornuis of deze geschikt is voor de aanwezige aansluiting. Informatie over het type aansluiting zal bekend gemaakt worden bij de bezichtiging of na de oplevering van de woning. (Parteon kan niet aansprakelijk gesteld worden voor verkeerd aangeschafte kookplaten of fornuizen).Voor meer informatie verwijzen we u graag naarhttps://www.rijksoverheid.nl/onderwerpen/duurzame-energie/vraag-en-antwoord/hoe-lang-kan-ik-nog-koken-op-gasFRAUDEIndien wij constateren dat documenten zijn vervalst en niet overeenkomen met de werkelijke situatie dan noemen we dat fraude. Dit geldt ook als u bewust een verkeerde voorstelling van de situatie geeft. Hier staat een zware sanctie op. De woningaanbieding wordt ingetrokken en u wordt voor de duur van één jaar geblokkeerd om via Woningnet te reageren.ZELFSTANDIG ONDERNEMERIndien u zelfstandig ondernemer bent dient u een recente definitieve aanslag of IBRI in te leveren. Als deze niet representatief of onbekend is dan dient u een voorlopige aanslag in te leveren bij Parteon. U kunt een geschatte aangifte indienen bij de Belastingdienst. U krijgt dan binnen twee weken een voorlopige aanslag van de Belastingdienst toegestuurd. Het heeft geen zin om op een woning te reageren als u deze aanslag nog niet heeft.De huur in deze advertentie is onder voorbehoud. Een intakegesprek en een betaalbaarheidstoets kunnen deel uitmaken van de toewijzingsprocedure.LET OP!Indien u kandidaat 1 wordt voor deze woning willen wij u erop wijzen dat u uw persoonlijke gegevens binnen 3 werkdagen bij Parteon dient in te leveren. Mochten de gegevens niet op tijd binnen zijn dan is Parteon genoodzaakt om de woning aan de volgende kandidaat aan te bieden.Voorwaarden:Inkomensverklaring verplichtEen verklaring geregistreerd inkomen of een definitieve aanslag inkomstenbelasting van de Belastingdienst van u en alle meeverhuizende personen (behalve kinderen) is verplicht. Deze moet van het voorgaande jaar zijn, of als deze nog niet beschikbaar is, van het jaar daarvoor.Vraag uwinkomensverklaringdirect aan door in te loggen op Mijn Belastingdienst of via de Belastingtelefoon (0800-0543). De corporatie controleert uw inkomen bij de toewijzing en wil uw inkomensverklaring(en) altijd ontvangen, ook als er geen bedrag op staat.Zorg ervoor dat het inkomen in uw inschrijving klopt. Anders loopt u het risico dat de corporatie u afwijst als u eerste kandidaat wordt.

Map