Rental property Zaandam

Thijssestraat 27, Zaandam

Quick summary

Location
Zaandam
Rental price
€732.97
Property type
Tussenwoning
Area:
69 m2
Rooms:
4
Beds:
3
Waiting time:
(not set)
Date available:
Jun 23, 2025
Maximum income:
€39.055.00
Status:
Expired

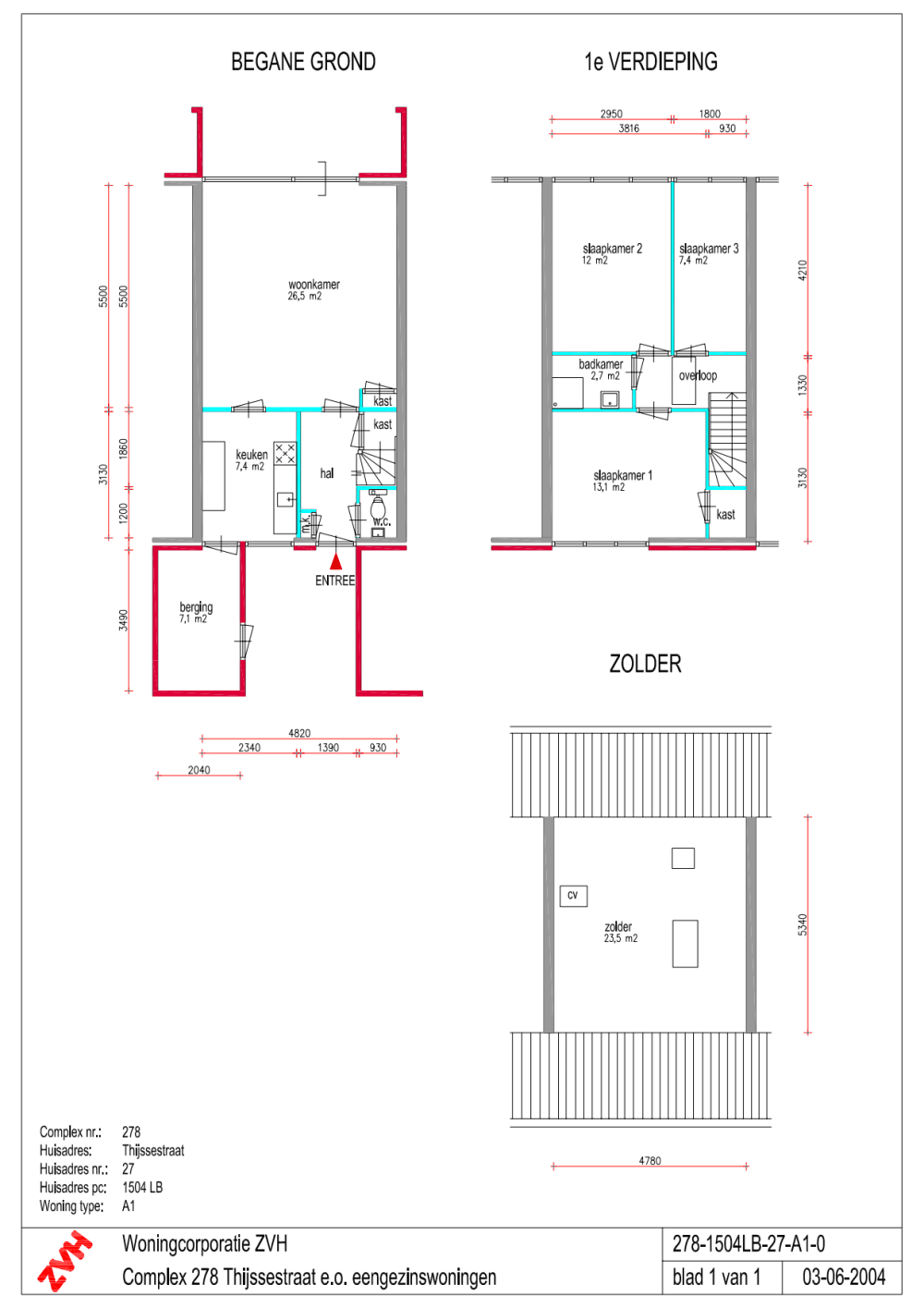
Property description

Ruime eengezinswoning in PoelenburgWoningVoortuin met toegang tot de berging.Entree/Hal.Toilet.Trapopgang.De woonkamer ligt aan de achterzijde en geeft toegang tot de achtertuin op het zuiden.De gesloten keuken ligt aan de voorzijde.Let op! Elektrisch koken, 2-fase.Via de keuken is de berging bereikbaar.Op de eerste verdieping zijn drie slaapkamers en de badkamer.De badkamer is voorzien van douche en wastafel.De ruime bergzolder is bereikbaar met een vlizotrap.ZVH geeft geen toestemming voor het plaatsen van een vaste trap en/of dakkapel.WoonomgevingKindvriendelijke woonwijk.Nabij het Darwinpark.Het winkelcentrum Gibraltar heeft een gevarieerd winkelaanbod en ligt op loopafstand.Gratis parkeren.Bushalte op loopafstand.Het centrum van Zaandam ligt op 10 minuten fietsen.In de wijk zijn basisscholen en kinderopvang.Aanvullende informatieWanden zijn deels behangen, deels behangklaar.Er is een nieuw keukenblok geplaatst.De badkamer is gerenoveerd.Er is elektrische zonwering aanwezig. Let op! ZVH pleegt hier geen onderhoud aan en verwijdert dit niet.De aansluiting voor de wasmachine bevindt zich in de keuken.De bezichtiging vindt plaats op 10 juli om 10:15 uur.Let op! Er gelden speciale voorrangregels voor Poelenburg. Zoekt u eerst informatie op internet voordat u reageert. Reageert u terwijl u niet aan de voorwaarden voldoet? En u wordt eerste kandidaat? Dan verliest u een zoekpunt.Extra voorwaarden Poelenburg en PeldersveldDe gemeente Zaanstad wil de leefbaarheid en kansen voor de bewoners in Poelenburg enPeldersveld vergroten. Een maatregel daarbij is dat sociale huurwoningen via WoningNet metvoorrang worden toegewezen. Als u in aanmerking komt voor een voorrang, dan moet u devoorrang zelf aanzetten in uw WoningNetprofiel. Indien u al woont in Poelenburg of Peldersveld endaar bent ingeschreven dan hoeft u de voorrang niet aan te zetten.Een onderzoek door de politie naar uw verleden en die van de meeverhuizende personen vanaf 16jaar maakt onderdeel uit van de selectieprocedure. Staat iemand binnen uw huishouden slechtbekend bij de politie, dan komt u niet in aanmerking voor een huurwoning in Poelenburg enPeldersveld.Als je niet in Poelenburg of Peldersveld woont, moet je dit zelf aangeven in je profiel op WoningNet.Ga naar hetProfielenVoorrangsregelingen.Selecteer de voorwaarde die voor jou geldt.Neem de voorwaarde die het hoogst telt.Sla je keuze op.Bij de toewijzing controleert de woningcorporatie of de voorrang klopt.Woon je nu al in Poelenburg en Peldersveld?Dan voldoe je al aan de voorwaarden als je wilt verhuizen binnen de wijken. Je hoeft zelf niets te doen. Als je adresgegevens in je inschrijving maar kloppen.Je krijgt automatisch voorrang omdat je een woonadres in Poelenburg of Peldersveld hebt.Wel wordt er onderzoek door de politie gedaan.Een uitzondering hierop zijn doelgroepen zoals stadsvenieuwingsurgenten uit Poelenburg en Peldersveld.Woon je nog niet in Poelenburg en Peldersveld?Iedereen kan reageren op huurwoningen in Poelenburg en Peldersveld.Je krijgt voorrang als aan bepaalde voorwaarden voldoet.Er zijn 3 soorten voorrang. De voorrang wordt ook in deze volgorde gegeven.1. Je hebt betaald werk bij een maatschappelijke organisatie, overheid, in de zorg of onderwijs.2. Je hebt betaald werk bij een commerciële (niet-maatschappelijke) organisatie of je ontvangt studiefinanciering of AOW.3. Je hebt een startkwalificatie. Dat betekent dat je een diploma hebt:Op mbo niveau 2 of hoger, havo of vwo.Als je bij een maatschappelijke organisatie werkt, val je in de 1e groep. Je voorrang telt dan zwaarder mee dan iemand die in de 2e groep valt.Wanneer personen dezelfde voorrang hebben, gaat de persoon met de langste inschrijfduur voor.Wat houdt het politieonderzoek in?De politie doet een onderzoek als je met de voorrangsregels een woning kunt krijgen in Poelenburg of Peldersveld. Dit onderzoek geldt voor jou en alle personen van jouw huishouden die 16 jaar en ouder zijn. Zonder dit onderzoek kun je geen huurwoning in Poelenburg en Peldersveld krijgen.Wat is een maatschappelijke organisatie?Je werkt bij een maatschappelijke organisatie wanneer de organisatie niet is gericht op het maken van winst. De organisatie is dan een overheidsinstelling, stichting of vereniging.Werk je bij een eenmanszaak, vennootschap onder firma (vof), naamloze vennootschap (nv) of besloten vennootschap (bv)? Dan is je organisatie commercieel. Bij je werkgever kun je navragen welke rechtsvorm de organisatie heeft.Let op!Sommige organisaties doen maatschappelijk werk, maar zijn toch commercieel.Bijvoorbeeld: een kinderdagverblijf dat een bv is en winst wil maken, is een commerciële organisatie. Ondanks dat het kinderdagverblijf een maatschappelijke rol heeft.Is het kinderdagverblijf een stichting? Dan is het kinderdagverblijf een maatschappelijke organisatie.

Map