Rental property Zaandam

Westzanerdijk 187, Zaandam

Quick summary

Location
Zaandam
Rental price
€901.72
Property type
Tussenwoning
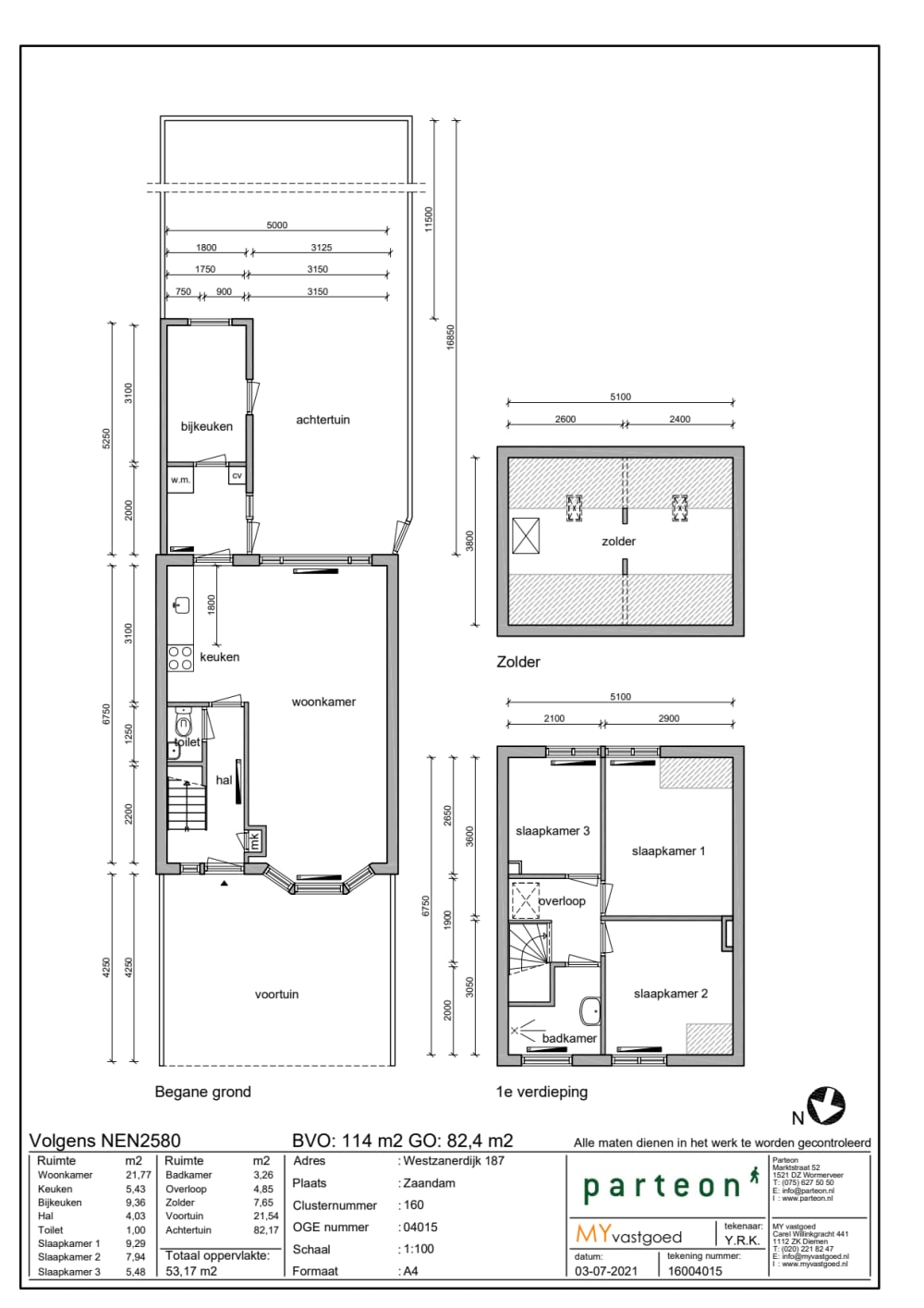
Area:
55 m2
Rooms:
4
Beds:
3
Waiting time:
(not set)
Date available:
Mar 12, 2025
Maximum income:
(not set)
Status:
Expired

Property description

Eengezinswoning gelegen aan een rustige straat nabij Westzanerdijk/Westerwatering in ZaandamWoning voor gezinnenWoonkamerOpen keukenToilet in de halAchter- en voortuinVanuit de bijkeuken is de achtertuin bereikbaarAchtertuin gelegen op het Zuidenkleine badkamer op de 1e verdieping3 slaapkamers waarvan 1 kleinevlizotrap naar bergzoldercv-ketelwoning gelegen aan de onderzijde van de dijkIn de BuurtSupermarkt op een fietsafstandHuisarts op een paar min. fietsafstandLagere school op een paar min. loopafstandBushalte op loopafstandTreinstation op 5 min. fietsafstandOpenbaar vervoer matigUitvalswegen naar Haarlem en Amsterdam binnen 8 min. bereikbaarSpeelgelegenheden in omgevingZeer rustige omgevingParkeren op korte afstand van de woning.Gelegen aan rustige straat met veel fietsersGelegen in Zaandam.Let op:woningkenmerken en plattegrond kunnen mogelijk iets afwijken van de werkelijkheid. Bijvoorbeeld omdat wij nog werkzaamheden moeten uitvoeren na de bezichtiging. De basis zoals het aantal kamers en het type woning staan vast.Aan deze advertentie kunt u geen rechten ontlenen.Huurprijs in onder voorbehoud. Deze kan nog wijzigen.Technische staatParteon levert iedere woning op met basiskwaliteit. Houd u er rekening mee dat u zelf nog het een en ander moet doen om de woning naar uw smaak te maken. Denk hierbij aan het leggen van een ondervloer/vloer (minimaal 10 decibel reducerend) afstomen van behang, opnieuw behangen of schilderen van muren. Schilderen van deuren, (raam) kozijnen en plafonds. Stofferen van de woning naar eigen smaak.Woning is half Maart verhuur gereed.Tuininrichting en onderhoud zijn tevens voor kosten van de huurder.Let op gasloos koken in deze woning!Parteon installeert vanaf 1 april 2022 in alle keukens een elektrische aansluiting voor het koken op elektra en verwijderd de gas aansluiting. Het is dan niet meer mogelijk om op gas te koken. Er zijn verschillende soorten aansluitingen en mogelijkheden voor het koken op elektra. Let op bij de aanschaf van uw elektrische kookplaat of fornuis of deze geschikt is voor de aanwezige aansluiting. Informatie over het type aansluiting zal bekend gemaakt worden bij de bezichtiging of na de oplevering van de woning. (Parteon kan niet aansprakelijk gesteld worden voor verkeerd aangeschafte kookplaten of fornuizen).Voor meer informatie verwijzen we u graag naarhttps://www.rijksoverheid.nl/onderwerpen/duurzame-energie/vraag-en-antwoord/hoe-lang-kan-ik-nog-koken-op-gasFRAUDEIndien wij constateren dat documenten zijn vervalst en niet overeenkomen met de werkelijke situatie dan noemen we dat fraude. Dit geldt ook als u bewust een verkeerde voorstelling van de situatie geeft. Hier staat een zware sanctie op. De woningaanbieding wordt ingetrokken en u wordt voor de duur van één jaar geblokkeerd om via Woningnet te reageren.ZELFSTANDIG ONDERNEMERIndien u zelfstandig ondernemer bent dient u een recente definitieve aanslag of IBRI in te leveren.  Het heeft geen zin om op een woning te reageren als u deze aanslag nog niet heeft.De huur in deze advertentie is onder voorbehoud. Een intakegesprek en een betaalbaarheidstoets kunnen deel uitmaken van de toewijzingsprocedure.LET OP!Indien u kandidaat 1 wordt voor deze woning willen wij u erop wijzen dat u uw persoonlijke gegevens binnen 3 werkdagen bij Parteon dient in te leveren. Mochten de gegevens niet op tijd binnen zijn dan is Parteon genoodzaakt om de woning aan de volgende kandidaat aan te bieden.Bij  de foto's en plattegrond kunnen nog wijzigingen optreden in verband met de nog uit te voeren werkzaamheden.

Map