Rental property Zaandijk

Karl Marxstraat 24, Zaandijk

Quick summary

Location
Zaandijk
Rental price
€733.58
Property type
Hoekwoning
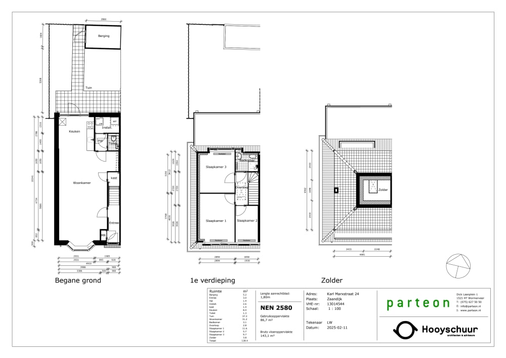
Area:
82 m2
Rooms:
4
Beds:
3
Waiting time:
(not set)
Date available:
Jun 24, 2025
Maximum income:
€39.055.00
Status:
Expired

Property description

Gerenoveerde  eindwoning RodebuurtWoningCentraal gelegen in het oude deel van het dorp ZaandijkBouwjaar vanaf 1921 totaal gerenoveerd en verduurzaamd met herstel van fundering in 2024De woningen zijn gerenoveerd met behoud en herstel van de cultuurhistorie van de wijk. Meer informatie te vinden op: https://www.parteon.nl/ik-ben-huurder/wwwparteonnlprojecten/project/rode-buurtEr is gewerkt met duurzame materialen en karakteristieke houten kozijnen aan de voorkant en onderhoudsarme onderdelen zoals kunststof kozijnen aan de achterzijdeDoor het oude bouwjaar zijn de plafonds op de eerste verdieping niet heel hoog en zijn er veel schuine delen in zowel de slaapkamers als de badkamer.De woningen zijn vergroot door het aanbrengen van een uitbouw over de gehele breedte van de begane grondDe woningen zijn gasloos en uitgevoerd met de nieuwste technieken, zo hebben de woningen een warmtepomp met boiler en mechanische ventilatie.Vloertype begane grond beton; vloertype eerste verdieping houtVloerverwarming op de begane grond, lage temperatuur convectoren op de eerste verdiepingOpen keukenElektrisch koken 2 fase perilex aansluiting aanwezig maximaal 7200 wattAchtertuin met schuttingHouten berging in de achtertuin1 toilet op de begane grond en 1 toilet op de 1steverdieping in de badkamerGoed geïsoleerd: dak, muren van binnenuit met voorzetwanden, isolatieglas en vloerisolatieGeluidsisolatie tegen woning scheidende wandenGratis parkeren in de omgevingWasmachine aansluiting en installaties in de technische ruimte op de begane grondHoud er rekening mee dat u zelf nog het één en ander moet doen om de woning naar uw smaak te maken. Denk hierbij aan het leggen van vloeren/ondervloeren (minimaal 10 decibel reducerend), schilderen/behangen van de muren, deuren, (raam)kozijnen en schuine plafonds. Parteonlevert de woning aan u op volgens de basisregels: Schoon en veilig.Foto's ter indicatie: afwerking kan afwijkenVlizo trap naar de bergzolderParteon plaatst schuttingen, onderhoud en reparatie is voor kosten van de huurderDe tuinen van de woningen in deze wijk zijn 50 cm afgegraven in verband met vervuilde grond. Er kan door de nieuwe bewoners niet dieper gegraven worden dan 40 cm om beschadiging van het aangebrachte signaleringsdoek te voorkomen.Door de gehele Zaanstreek is grond vervuild geraakt door loodwitmolens en de verplaatsing van grond. Lood is veelvuldig gebruik als bouwmateriaal en voor waterleidingen.Door sloopwerkzaamheden en het storten van afval kwam dit uiteindelijk ook in de bodem terecht. Vroeger werd niet zo nauwkeurig omgegaan met bouwafval als tegenwoordig. De al honderden jaren zakkende Zaanse bodem is een derde oorzaak van de verontreiniging. Het ophogen van de ondergrond werd vroeger gedaan met alles wat voorhanden was: puin, sintels of gratis slakken van de voormalige Hoogovens.OmgevingSupermarkt op fietsafstandLagere scholen op loopafstandMiddelbare school op fiets afstandOpenbaar vervoer op loop-fietsafstandZaanse schans op loop-fietsafstandOnderhoud en aanleg van tuin zijn voor kosten van de huurderNette bewoning gewenstWoning is gelegen in een rustige wijkLet op:woningkenmerken en plattegrond kunnen mogelijk iets afwijken van de werkelijkheid. Bijvoorbeeld omdat wij nog werkzaamheden moeten uitvoeren na de bezichtiging. De basis zoals het aantal kamers en het type woning staan vast.Aan deze advertentie kunt u geen rechten ontlenen.Huurprijs is onder voorbehoud. Deze kan nog wijzigen.

Map