Rental property Zuidoostbeemster

Zuiderhof 2, Zuidoostbeemster

Quick summary

Location
Zuidoostbeemster
Rental price
€565.87
Property type
Appartement
Area:
40 m2
Rooms:
2
Beds:
1
Waiting time:
(not set)
Date available:
Mar 1, 2023
Maximum income:
€39.055.00
Status:
Expired

Property description

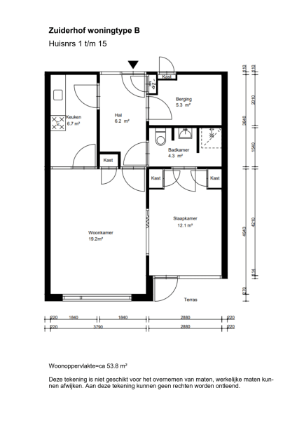
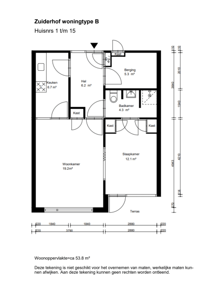
In het Zuiderhof komt deze twee kamer seniorenwoning vrij. Via de hoofdingang loopt u rechtdoor via de binnen gang naar uw voordeur. Entree: vanuit de centrale hal heeft u toegang tot de (afsluitbare) keuken, de berging, kleine badkamer en woonkamer. Naast de woonkamer is de slaapkamer gelegen. Vanuit de slaapkamer heeft u toegang tot een tuin met een klein terras, grenzend aan de binnentuin. U kijkt uit op deze tuin, sloot en de Dirk Dekkerstraat. Het terras bij de woning is gelegen op het Oost-Zuidoosten en heeft ochtend/ vroeg in de middag zon. De woning grenst aan een zijde aan de fietsenstallingen. Het enkel glas wordt in het eerste kwartaal 2023 vervangen voor dubbel glas. De inpandige badkamer is ook vanuit de slaapkamer te betreden en is voorzien van een douche, toilet en een wastafel. De aansluiting voor de was-en droogmachine bevindt zich in de berging. Wooncomplex Het wooncomplex Zuiderhof omvat 68 woningen met 2 of 3 kamers. Er zijn 45 woningen in het hoofdgebouw dat 3 verdiepingen telt en 23 laagbouwwoningen (bouwjaar 1972). In het hoofdgebouw is een fysiotherapiepraktijk op de begane grond. Er is een gezamenlijke recreatiezaal waar de huurderscommissie activiteiten organiseert. De woningen krijgen hun warmte via een gezamenlijke cv-ketel. Er zijn geen metertjes aanwezig op de radiatoren. De totale verwarmingskosten worden verdeeld door het totaal van 45 woningen. Bij de hoofdingang vindt u de postbussen. Momenteel is het gebouw vrij toegankelijk overdag en afgesloten s nachts. In 2023 worden de postbussen verplaatst naar de gevel waardoor de toegangsdeur afgesloten kan worden. In de woning is een intercomsysteem aanwezig voor het openen van de toegang naar het gebouw. In het pand is een fysiotherapiepraktijk op de begane grond. Daarnaast is er een gezamenlijke recreatiezaal waar de huurderscommissie activiteiten organiseert. Omgeving Er zijn een aantal parkeerplekken beschikbaar op eigen terrein, verder is er rondom het wooncomplex vrij parkeren. De parkeerdruk is gemiddeld tot hoog. Er zijn garages aanwezig om te huren, u kunt zich inschrijven op de wachtlijst. De afvalcontainers zijn centraal opgesteld bij de ingang van het wooncomplex. In 2022 is de binnentuin rondom gerenoveerd en is een ecologische tuin aangelegd. De tuin staat veelal vol met bloemen. De buurtbus stopt voor de deur van de hoofdingang. Het hoofdgebouw heeft twee ruime fietsenstalling. Een aparte scootmobiel wordt nog geplaatst. Het wooncomplex ligt op een kwartier loopafstand van de historische binnenstad van Purmerend met zijn veelzijdige winkelaanbod alsmede de Koemarkt. Altijd iemand bereikbaar De bewonersconsulent is het aanspreekpunt voor alle bewoners. Zij maakt u graag wegwijs in uw nieuwe woonomgeving en ziet erop toe dat u er prettig en rustig kunt wonen. Daarbij zorgt zij ervoor dat u precies de service krijgt die u wilt. Tweemaal per week is de bewonersconsulent aanwezig op het wooncomplex. Voorwaarden: Inkomensverklaring verplicht Een verklaring geregistreerd inkomen of een definitieve aanslag inkomstenbelasting van de Belastingdienst van u en alle meeverhuizende personen (behalve kinderen) is verplicht. Deze moet van het voorgaande jaar zijn, of als deze nog niet beschikbaar is, van het jaar daarvoor. Vraag uw inkomensverklaring direct aan door in te loggen op Mijn Belastingdienst of via de Belastingtelefoon (0800-0543). De corporatie controleert uw inkomen bij de toewijzing en wil uw inkomensverklaring(en) altijd ontvangen, ook als er geen bedrag op staat. Zorg ervoor dat het inkomen in uw inschrijving klopt. Anders loopt u het risico dat de corporatie u afwijst als u eerste kandidaat wordt.

Map