Rental property Zuidoostbeemster

Zuiderhof 22, Zuidoostbeemster

Quick summary

Location
Zuidoostbeemster
Rental price
€565.87
Property type
Portiekwoning
Area:
45 m2
Rooms:
2
Beds:
1
Waiting time:
(not set)
Date available:
Aug 28, 2023
Maximum income:
€39.055.00
Status:
Expired

Property description

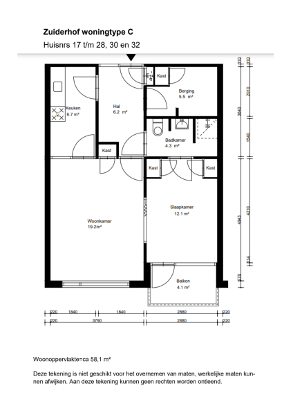
Voorrang Beemsterlingen In het senioren complex Zuiderhof komt deze twee kamer seniorenwoning met balkon vrij. Woning De woning ligt op de 1e verdieping. Via de hal komt u in de berging, keuken, inpandige badkamer en woonkamer. Naast de woonkamer ligt de slaapkamer. Het balkon, dat op het oosten ligt, is bereikbaar via de slaapkamer. Wooncomplex Het Zuiderhof bestaat uit 68 woningen met 2 of 3 kamers. Naast 45 woningen in het hoofdgebouw, dat 3 verdiepingen telt, zijn er 23 laagbouwwoningen. In het hoofdgebouw is een fysiotherapiepraktijk en een recreatiezaal waar de huurderscommissie activiteiten organiseert. Er is een fietsenstalling, er komt een scootmobielstalling en op eigen terrein is een aantal parkeerplaatsen. Er is een optie tot het huren van een garagebox. U kunt zich hiervoor inschrijven op een wachtlijst. Er is een gemeenschappelijke tuin rond het complex. De binnentuin van het complex is in 2022 gerenoveerd. Er is een ecologische deel aangelegd met veel bloemen. De buitenkant van het complex is geschilderd in 2023. Omgeving In de naaste omgeving kunt u vrij parkeren. De parkeerdruk is vrij hoog. Bij de ingang van het complex staan afvalcontainers. De historische binnenstad ligt op een kwartier loopafstand. De buurtbus stop voor het complex. De bewonersconsulent houdt twee keer per week spreekuur op het complex. Van maandag tot vrijdag kunt u de bewonersconsulent telefonisch benaderen van 08.30 tot 12.00 uur. Na werktijden wordt u bij spoedgevallen doorgeschakeld naar de meldkamer, er is dus altijd iemand bereikbaar. Voorwaarden: Inkomensverklaring verplicht Een verklaring geregistreerd inkomen of een definitieve aanslag inkomstenbelasting van de Belastingdienst van u en alle meeverhuizende personen (behalve kinderen) is verplicht. Deze moet van het voorgaande jaar zijn, of als deze nog niet beschikbaar is, van het jaar daarvoor. Vraag uw inkomensverklaring direct aan door in te loggen op Mijn Belastingdienst of via de Belastingtelefoon (0800-0543). De corporatie controleert uw inkomen bij de toewijzing en wil uw inkomensverklaring(en) altijd ontvangen, ook als er geen bedrag op staat. Zorg ervoor dat het inkomen in uw inschrijving klopt. Anders loopt u het risico dat de corporatie u afwijst als u eerste kandidaat wordt.

Map