Rental property Hengelo

De Wetstraat 108, Hengelo

Quick summary

Location
Hengelo
Rental price
€648.78
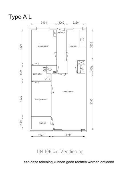
Property type
Appartement
Area:
62 m2
Rooms:
3
Beds:
2
Waiting time:
(not set)
Date available:
Dec 12, 2022
Maximum income:
€39.055.00
Status:
Expired

Property description

Appartementencomplex De Wetering bestaat uit 35 woningen. Elke verdieping heeft een huiskamer waar huurders elkaar kunnen ontmoeten. Elke woning heeft op de begane grond een berging. De woningen zijn voorzien van videofoon. De badkamers zijn onlangs gemoderniseerd en rolstoeltoegankelijk gemaakt. De Wetstraat 108 is ook voorzien van zonwering, hiervoor betaald u 22,95 per maand extra. Twinta heeft met KPN een gunstig abonnement afgesproken, waarbij u voordelig gebruik kunt maken van televisie, internet en gratis bellen. Iedere huurder is gratis lid van de Carintreggeland Ledenservice en profiteert daarmee van voordeel op meer dan 25 diensten. https://www.carintreggeland.nl/Carintreggeland/Ledenservice/De-Ledenservice. Voorwaarden: Als u kandidaat bent voor de woning dan ontvangt u een mail om contact op te nemen met Twinta. Heeft u geen mail adres dan neemt Twinta contact met u op. Voordat u de woning aangeboden krijgt wordt u altijd eerst uitgenodigd voor een toewijzingsgesprek. Voor dit gesprek dient u uw inkomensgegevens, ID-bewijs en verhuurdersverklaring (indien van toepassing) mee te nemen.

Map