Rental property Amersfoort

Rozenstraat 25, Amersfoort

Quick summary

Location
Amersfoort
Rental price
€875.76
Property type
Tussenwoning
Area:
74 m2
Rooms:
4
Beds:
3
Waiting time:
(not set)
Date available:
May 23, 2025
Maximum income:
(not set)
Status:
Expired

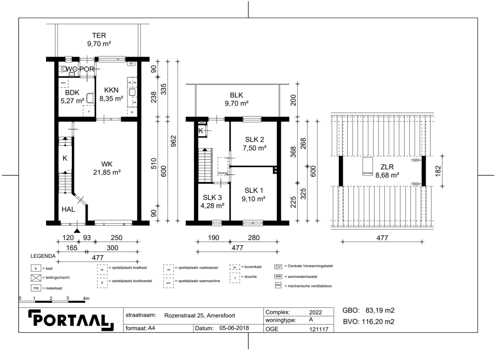
Property description

Deze karakteristieke eengezinswoning van vooroorlogse bouw van woningcorporatie Portaal is gelegen in de volkswijk Soesterkwartier.Indeling woningBinnenkomst hal met toegang tot de woonkamer, keukenen de badkamer.Op de verdieping zijn 3 slaapkamers. De zolder is te bereiken middels een vlizotrap.Om een beter beeld te krijgen verwijzen wij u naar de plattegrond. Hier kunnen geen rechten aan worden ontleend.VoorzieningenDiverse voorzieningen zoals scholen, winkels en openbaar vervoer zijn op loopafstand of goed bereikbaar.Belangrijke informatieAl onze woningen van voor 1994 worden asbestveilig opgeleverd en  in technisch goede staat. Houdt u er rekening mee dat u altijd eerst moet behangen of sausen en dat er geen vloer in de woning ligt.U en alle meeverhuizende volwassen personen (behalve kinderen)  zijn bij het reageren op een woning verplicht in bezit te zijn van een recente inkomensverklaring. Dit doet u via www.mijnbelastingdienst.nl.Indien u inkomen onbekend is bij de belastingdienst, of boven de inkomensgrens komt dan moet u van de afgelopen 3 maanden salaris/pensioen/uitkering specificatie inleveren.Indien u bij de acceptatie van de woning de inkomensverklaring niet heeft dan kunnen wij de woning niet aan u toewijzen.Accepteren van de woningOm een woning te accepteren hebben wij de volgende documenten nodig:Acceptatieformulier (via website van Portaal)Inkomensverklaring 2024 of 2023Recent inkomen van de laatste 3 maandenBRP met woonhistorie (via Gemeente)Verhuurdersverklaring (indien uw huidige woning een huurwoning betreft).Kopie legitimatiebewijs (voor en achterzijde)

Map