Rental property Baarn

Lijsterbeslaan 75, Baarn

Quick summary

Location
Baarn
Rental price
€678.62
Property type
Appartement
Area:
35 m2
Rooms:
2
Beds:
1
Waiting time:
(not set)
Date available:
Mar 17, 2025
Maximum income:
€39.055.00
Status:
Expired

Property description

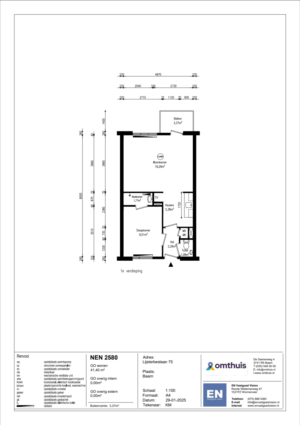
Woningzoekenden met voorrang lokale binding krijgen voorrang. Uw binding wordt vooraf NIET gecontroleerd. Controleer of u binding goed heeft staan in uw inschrijving. U leest hier wat de binding inhoudt:Vraag en antwoord - Omthuis.Deze woning is bij voorkeur alleen geschikt voor 1 persoon of een stel. Huishoudens van meer dan twee personen of met kinderen worden afgewezen.VerhuurdatumDe woning is onder voorbehoud per direct beschikbaar.BezichtigingDe bezichtiging vindt plaats op 14 maart 2025 in de ochtend en alleen voor genodigden. De bezichtiging is verplicht. Kunt u zelf niet mag u uiteraard iemand in uw plaats sturen. Een extra bezichtiging is niet mogelijk.De WoningDit twee kamer appartement is een tussenwoning op de eerste verdieping met balkon. Vanuit de hal kunt u naar de toilet, slaapkamer en woonkamer. De slaapkamer is aan de voorzijde van de woning en heeft een aangrenzende badkamer. De woonkamer heeft een halfopen keuken met wasmachine aansluiting.  Via de woonkamer bereikt u het balkon.Staat van de woningOmthuis levert iedere woning op met basiskwaliteit: schoon, heel en veilig.De woning wordt kaal opgeleverd! Houd er dus rekening mee dat u zelf ook het een en ander moet doen om de woning naar uw smaak te maken. Denk daarbij aan het leggen van ondervloeren en vloeren en het schilderen en behangen van de muren en plafonds.Het gebouwDe galerijwoningen aan de Lijsterbeslaan zijn zeer centraal gelegen met voldoende parkeergelegenheid dichtbij. Ook is er een gemeenschappelijke fietsenberging.Wonen in BaarnBaarn is gelegen tussen Amersfoort, Hilversum en Soest. De stad is goed bereikbaar via de A1 en de N211 en ook via openbaar vervoer.De buurten zijn groen en kindvriendelijk, er zijn parken en diverse scholen. Ook is er een mooi sportcentrum met zwembad De Trits. Middelpunt van de stad Baarn is het centrum met winkels en het plein de Brink. Aan het plein de muziektent en restaurants met gezellige terrasjes.

Map