Rental property Hekendorp

Prinses Wilhelminastraat 24, Hekendorp

Quick summary

Location
Hekendorp
Rental price
€771.07
Property type
Hoekwoning
Area:
63 m2
Rooms:
4
Beds:
3
Waiting time:
(not set)
Date available:
Jun 2, 2025
Maximum income:
(not set)
Status:
Expired

Property description

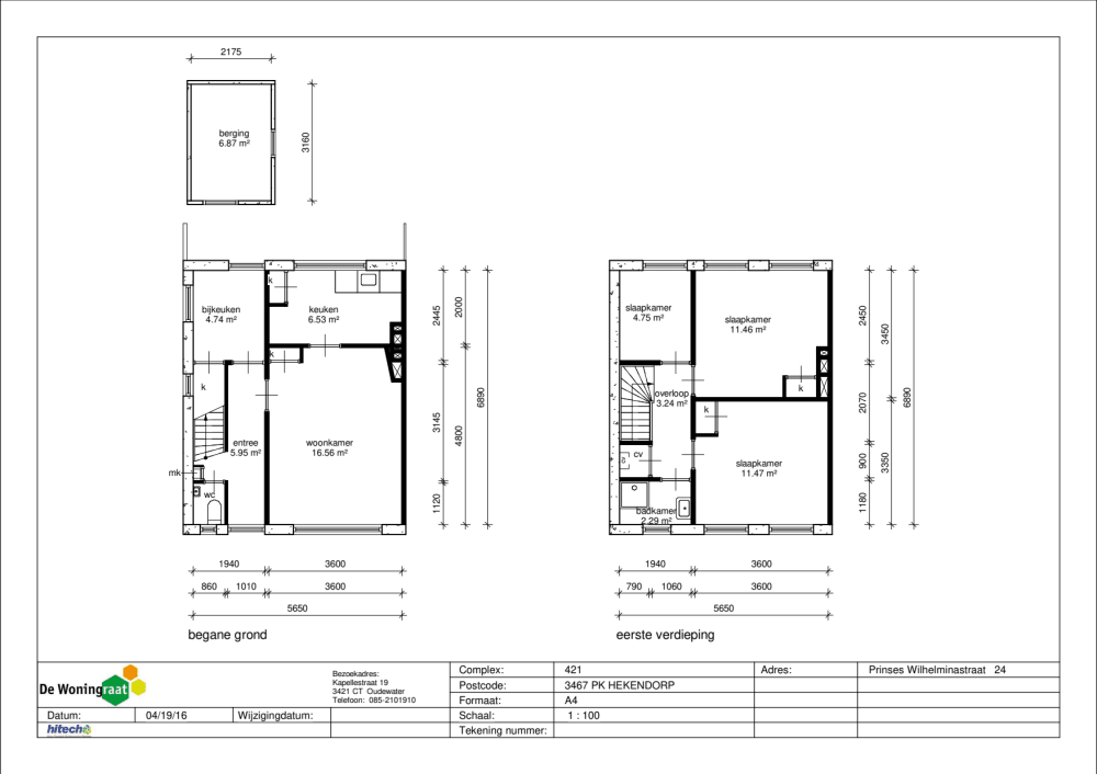
De aangeboden eengezinswoning beschikt over een voor- en achtertuin met stenen berging en achterom. De ligging is landelijk in het Groene Hart. Hekendorp is een hechte gemeenschapshuis met kleine horeca. Voor overige voorzieningen bent u aangewezen op Oudewater of Haastrecht.Indeling;Begane grond: Vanuit de entree heeft u toegang tot de toiletruimte, trapkast en de doorzon woonkamer (ca. 25 m²), gesloten keuken (ca. 6 m²); deze bevindt zich aan de achterzijde van de woning en beschikt over 4 onderkasten, 3 bovenkasten, aansluiting voor gasfornuis en een deur naar de achtertuin.1eVerdieping: overloop, 3 slaapkamers van respectievelijk ca. 6, 10 m² en 13 m², badkamer met douche, wastafel en wasmachine-aansluiting (ca. 4 m²).2eVerdieping: via vlizotrap te bereiken zolder - te gebruiken als opslag - met opstelplaats van CV-ketel en mechanische ventilatie.Voorzieningen;Individuele HR-combiketel voor verwarming en warm waterWasmachine-aansluitingMechanische ventilatie in toilet en badkamerZonnepanelen met bijbehorende installatie om eigen energie op te wekken. LET OP: U gaat hiervoor een contract aan met Wocozon.Woningbezichtiging:Wij nodigen een beperkt aantal kandidaten uit voor een groepsbezichtigingWanneer u tot 1 van de kandidaten behoort krijgt u een uitnodiging per e-mail toegestuurdAanmelding voor bezichtiging is verplichtDeze aanbieding geldt niet indien;Uw (verzamel)inkomen te hoog of te laag is volgens de bepalingen in de Woningwet dan wel Huisvestingsverordening van de Gemeente Oudewater (zie www.oudewater.nl)U niet voldoet aan de passendheidseisen gesteld in de Huisvestingsverordening van de Gemeente OudewaterU niet voldoet aan de voorwaarden in de woningadvertentieU geen verhuurdersverklaring heeft ingeleverd als u doorstromer bentUit de verhuurdersverklaring of uit andere informatie blijkt dat er sprake is (geweest) van feiten of omstandigheden die voor ons reden zijn om geen huurovereenkomst met u te willen aangaan, zoals (huur) schulden of overlastVerhuurdatum is onder voorbehoudPlattegrond niet accuraat i.v.m. renovatieAan deadvertenties, foto's, informatie en teksten in deze advertentie kunnen geen rechten worden ontleend. Wijzigingen en typefoutenvoorbehouden.

Map