Rental property Leusden

Korte Geer 63, Leusden

Quick summary

Location
Leusden
Rental price
€856.02
Property type
Appartement
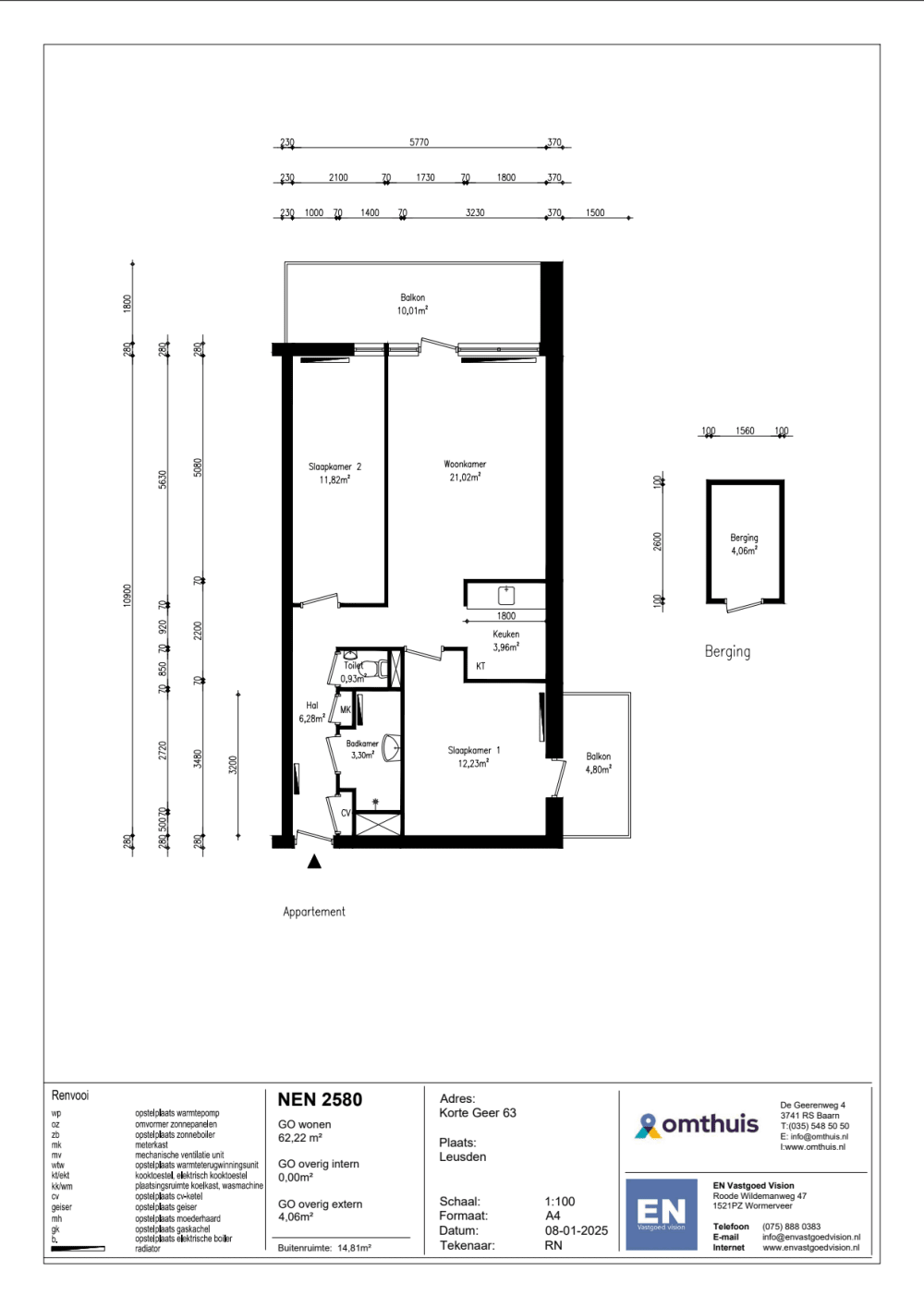
Area:
52 m2
Rooms:
3
Beds:
2
Waiting time:
(not set)
Date available:
Feb 10, 2025
Maximum income:
(not set)
Status:
Expired

Property description

U krijgt voorrang op dit appartement, als u huurder bent van Omthuis en deelnemer bent aan ons doorstroomproject:Van Groot Naar Fijn. Meer informatie hierover leest u op onze website.VerhuurdatumDe woning is onder voorbehoudbegin februari 2025beschikbaar.Deze woning is bij voorkeur alleen geschikt voor 1 persoon of een stel. Huishouden van meer dan twee personen of met kinderen worden afgewezen.De woningDit nette 3-kamer appartement bevindt zich op de tweede verdieping van een seniorencomplex. Indeling: entree, hal met toegang tot de cv kast, de badkamer en het losse toilet. Vanuit de hal komt u in de slaapkamer en loopt u naar de woonkamer met keuken en balkon. Aan de woonkamer grenst de tweede slaapkamer met tweede balkon. De slaapkamer die op dit moment is opgedeeld in twee ruimten zal weer worden teruggebracht naar de originele indeling zoals op de plattegrond.Dit appartement heeft een externe eigen berging. Ook is er een openbare parkeerplaats voor het complex aanwezig.Overnames onder voorbehoud zijn o.a.:- Laminaatvloer- Raambekleding- LampenOvernamesOvernames kunnen alleen doorgaan als een kandidaat de woning toegewezen heeft gekregen voor einddatum contract van de huidige huurder. Overnames regelen huidige en nieuwe huurder onderling. Voor het onderhoud van overnames is de nieuwe huurder zelf verantwoordelijk.Staat van de woningOmthuis levert iedere woning op met basiskwaliteit: schoon, heel en veilig.Wat moet u vaak nog zelf doen?Houd er rekening mee dat u zelf ook nog het een en ander moet doen om de woning naar uw smaak te maken. Denk daarbij aan het leggen van ondervloeren en vloeren en het schilderen en behangen van de muren en plafonds.Wonen in LeusdenWonen in een dorp met alle nodige voorzieningen en toch dichtbij een grote stad? Dat biedt Leusden. Het dorp  is goed bereikbaar via de A28 en licht dicht bij de A1. Ook via openbaar vervoer. Binnen een kwartier ben je in Amersfoort en in een half uur in Utrecht. Voor je boodschappen kun je in verschillende winkelcentra terecht. De Biezenkamp en  Hamershof bijvoorbeeld, met meer dan 90 winkels, is een veelzijdig shopping center. Gezellig een avondje uit? Mogelijkheden genoeg met gevarieerde horeca, theater De Tuin en het bekende AFAS-theater.

Map