Rental property Maarssen

Bisonspoor 138, Maarssen

Quick summary

Location
Maarssen
Rental price
€747.74
Property type
Appartement
Area:
80 m2
Rooms:
3
Beds:
2
Waiting time:
(not set)
Date available:
Apr 8, 2026
Maximum income:
(not set)
Status:
Published
Respond

Property description

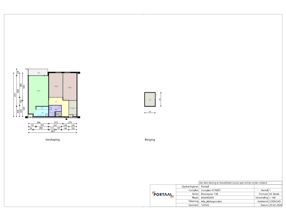
Bisonspoor ligt op enkele minuten lopen van het NS-station, het busstation en het grootste winkelcentrum van de gemeente Stichtse Vecht “Bisonspoor”. In de wijk Bisonspoor vind je naast het winkelcentrum en eetgelegenheden en fitnesshal, ook een bibliotheek, zwembad en sporthal.Ideaal wonen voor senioren. Bent u 65 jaar of ouder en woont u alleen of met uw tweeën in een eengezinswoning? Wilt u naar een andere woning verhuizen? Een woning die beter past bij uw woonwensen en de huidige samenstelling van uw huishouden? Dan is het appartementencomplex aan de Bisonspoor misschien iets voor u. Het complex heeft een afgesloten toegangshal, een lift en de algemene deuren hebben elektrische deurdrangers.Het appartement is gelegen op de 2e verdieping en heeft een ruime woonkamer, 2 slaapkamers een open keuken, een balkon en een berging op de begane grond.Zie de plattegrond voor de indeling.Bijzonderheden:- Vrij parkeren in de straat.- Het is ook mogelijk om een privéparkeerplaats met beugel te huren, u kunt u hier na aanvang van het huurcontract voor op de wachtlijst laten plaatsen.- Het huurcontract gaat op korte termijn in.De servicekosten zijn inclusief voorschot gemeenschappelijk elektra/schoonmaak en glas- en rioolfonds.Een onderhoudsabonnement kunt u afsluiten als u kleine reparaties in en om uw huis door Portaal wilt laten doen. Wilt u dit abonnement afsluiten? Geeft u dit dan aan op het acceptatieformulier.

Map