Rental property Rhenen

Verlengde Oude Veenendaalseweg 34F, Rhenen

Quick summary

Location
Rhenen
Rental price
€689.81
Property type
Tussenwoning
Area:
30 m2
Rooms:
2
Beds:
1
Waiting time:
(not set)
Date available:
Nov 1, 2025
Maximum income:
€39.055.00
Status:
Expired

Property description

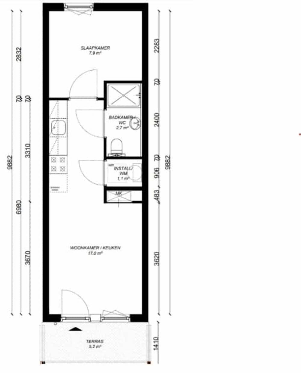
Energiezuinige flexwoning met 1 slaapkamerHet projectFlexwoningen zijn woningen die voor een bepaalde tijd gebouwd worden. De gemeente Rhenen aan de rand van Rhenen vijftien flexwoningen geplaatst voor ca. 9 jaar. Rhenam Wonen verhuurt en beheert de flexwoningen voor de gemeente. Vijf flexwoningen zijn gereserveerd voor bijzondere doelgroepen. De andere tien flexwoningen worden regulier verdeeld via Huiswaarts.DoelgroepDe flexwoningen zijn bestemd voor eenpersoonshuishoudens. Voor meer informatie over de toewijzing zie de voorwaarden en spelregels. Woningzoekenden meteen lokale binding (economische of maatschappelijke binding) aan de gemeente Rhenen krijgen voorrang (zie  huiswaarts.mijndak.nl voor meer informatie). Voldoet u hieraan? Vink de binding aan in uw inschrijving bij Huiswaarts voordat u reageert op de flexwoningen.Planning kijkmoment en verhuurEr is een kijkmoment gepland voor belangstellenden. Opmaandag 13 oktober van 16-17.30uis één van de flexwoningen opengesteld voor bezichtiging. U bent van harte welkom.De sleuteluitgifte van de woningen is opvrijdag 31 oktober a.s. Reserveer deze data alvast in uw agenda.Behoud inschrijftijd HuiswaartsNormaalgesproken verdwijnt uw inschrijving in Huiswaarts op het moment dat u een woning accepteert. Bij de flexwoningen is dat niet het geval. Uw inschrijving bij Huiswaarts blijft gehandhaafd na acceptatie van een flexwoning.De woningenDe tweekamerwoningen hebben een aparte slaapkamer, badkamer met toilet, keuken, technische ruimte voor de warmtepomp met opstelplaats voor de wasmachine, duurzame installaties.  De keuken is alleen geschikt voor koken op inductie (kookapparaat dient u zelf aan te schaffen). Een afzuigkap is aanwezig. De woningen zijn goed geïsoleerd, gasloos en voorzien van zonnepanelen.Het terreinOp het terrein is een ondergrondse vuilcontainer voor restafval aanwezig. Parkeren kan op het parkeerterrein nabij de woningen. Op het terrein is verder een gemeenschappelijke tuin en (fietsen)berging aanwezig.

Map