Rental property Soest

Klarinet 183, Soest

Quick summary

Location
Soest
Rental price
€940.64
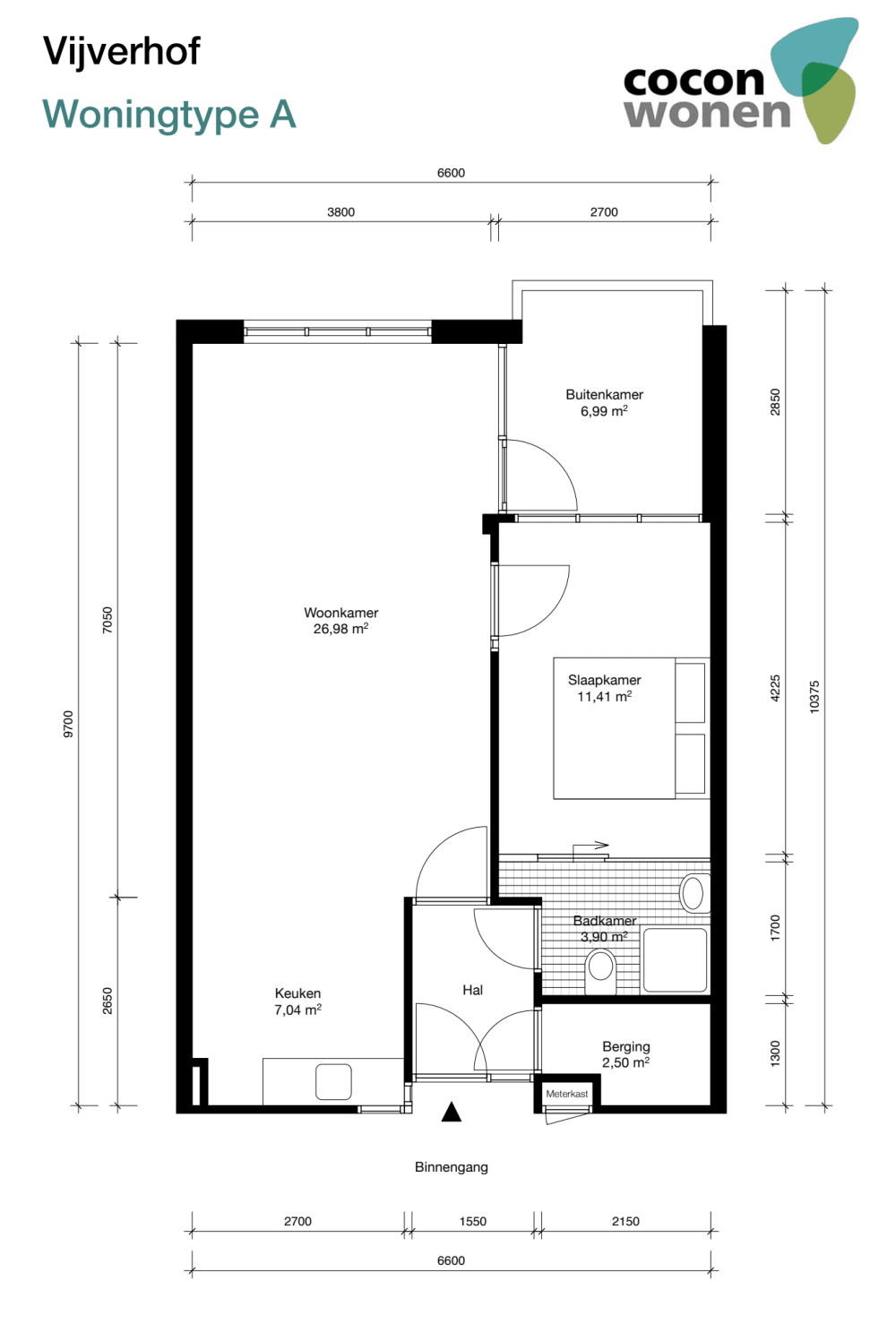
Property type
Appartement
Area:
56 m2
Rooms:
2
Beds:
1
Waiting time:
(not set)
Date available:
Jun 3, 2025
Maximum income:
(not set)
Status:
Expired

Property description

Klarinet 183 ligt in woongebouw “De Vijverhof” midden in de woonwijk Overhees. Gesitueerd rond een plein, met aan de west-zijde een grote vijver. Het winkelcentrum, gezondheidscentrum en bushalte bevinden zich op loopafstand.Het woongebouw bestaat uit twee vleugels van gedeeltelijk twee en drie woonlagen, onderling verbonden door een overdekte luchtbrug. Het complex bestaat uit 155 appartementen, waarvan 96 tweekamer en 59 driekamer appartementen.De benedenwoningen hebben een eigen tuin. De bovenwoningen hebben een overdekt balkon.Cocon Wonen verhuurt woningen voor senioren vanaf 65 jaar. Met zaken die wonen net even wat makkelijker maken:  een huismeester, persoonsalarmering, bibliotheek, hobbyruimte, logeerkamers voor gasten, ontmoetingscentrum en een actieve bewonerscommissie. Huurtoeslag is mogelijk afhankelijk van het inkomen. Geen meeverhuizende kinderen mogelijk.Voor meer informatie:https://www.coconwonen.nl/

Map