Rental property Soest

Wiardi Beckmanstraat 463, Soest

Quick summary

Location
Soest
Rental price
€969.07
Property type
Appartement
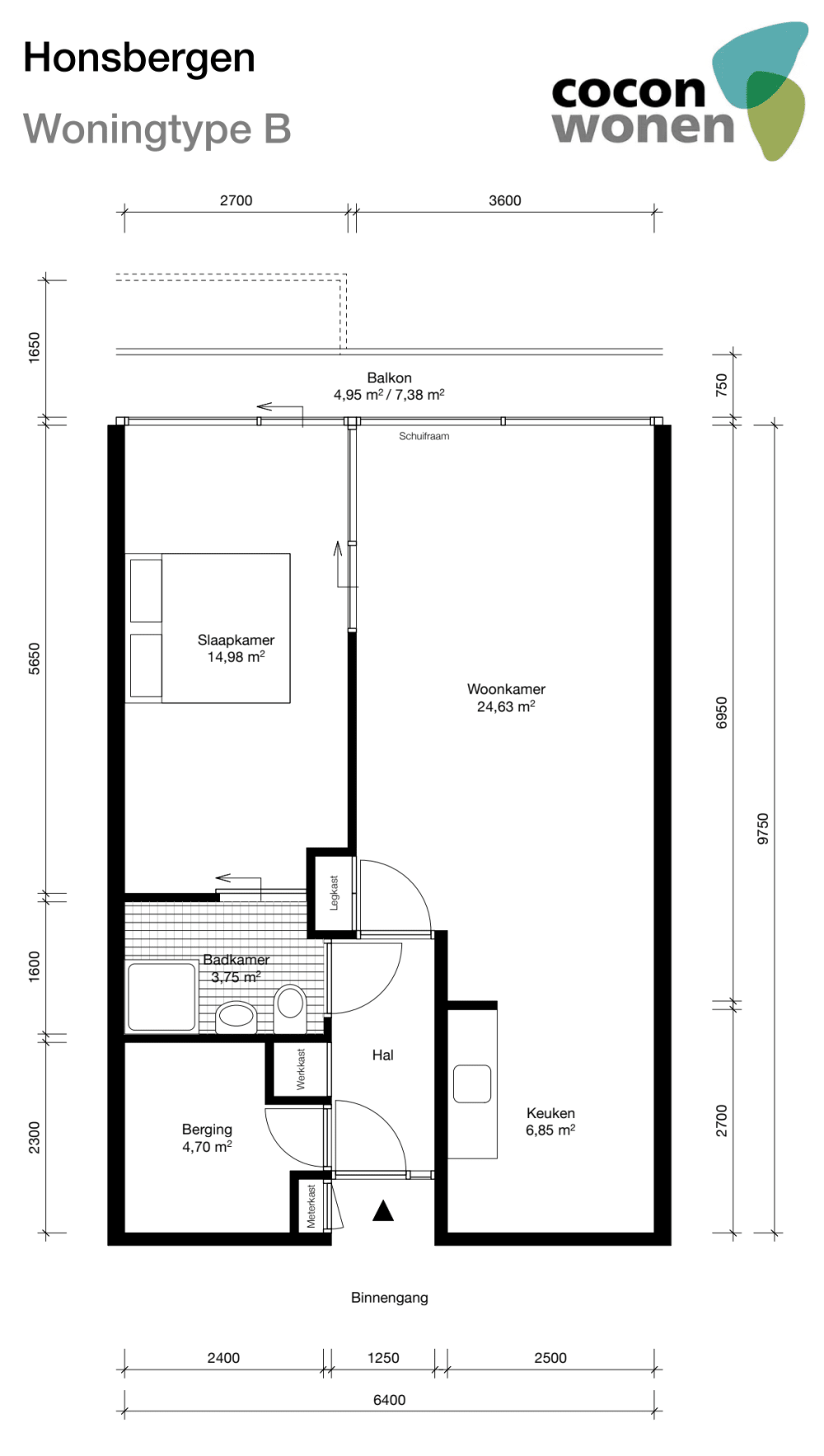
Area:
60 m2
Rooms:
2
Beds:
1
Waiting time:
(not set)
Date available:
May 13, 2025
Maximum income:
(not set)
Status:
Expired

Property description

Wiardi Beckmanstraat 463 ligt in woongebouw “Honsbergen” centraal gelegen in de wijk Klaarwater. Het appartement bevindt zich op de 8e etage en is gelegen aan de voor/achterzijde van het gebouw. Onder het uit drie vleugels bestaande gebouw is een supermarkt gevestigd, een kapper, een peuterspeelzaal en een restaurant.Het woongebouw heeft 225 appartementen, waaronder 182 tweekamerappartementen, 30 driekamerappartementen, 5 kleine aangepaste appartementen voor mindervaliden en 8 grote aangepaste appartementen voor minder validen.Cocon Wonen verhuurt woningen voor senioren vanaf 65 jaar. Met zaken die wonen net even wat makkelijker maken:  een huismeester, persoonsalarmering, bibliotheek,  logeerkamers voor gasten, ontmoetingscentrum en een actieve bewonerscommissie. Huurtoeslag is mogelijk afhankelijk van het inkomen. Geen meeverhuizende kinderen mogelijk.Voor meer informatie:www.coconwonen.nl

Map