Rental property Utrecht

Boliviadreef 42, Utrecht

Quick summary

Location
Utrecht
Rental price
€887.72
Property type
Portiekwoning
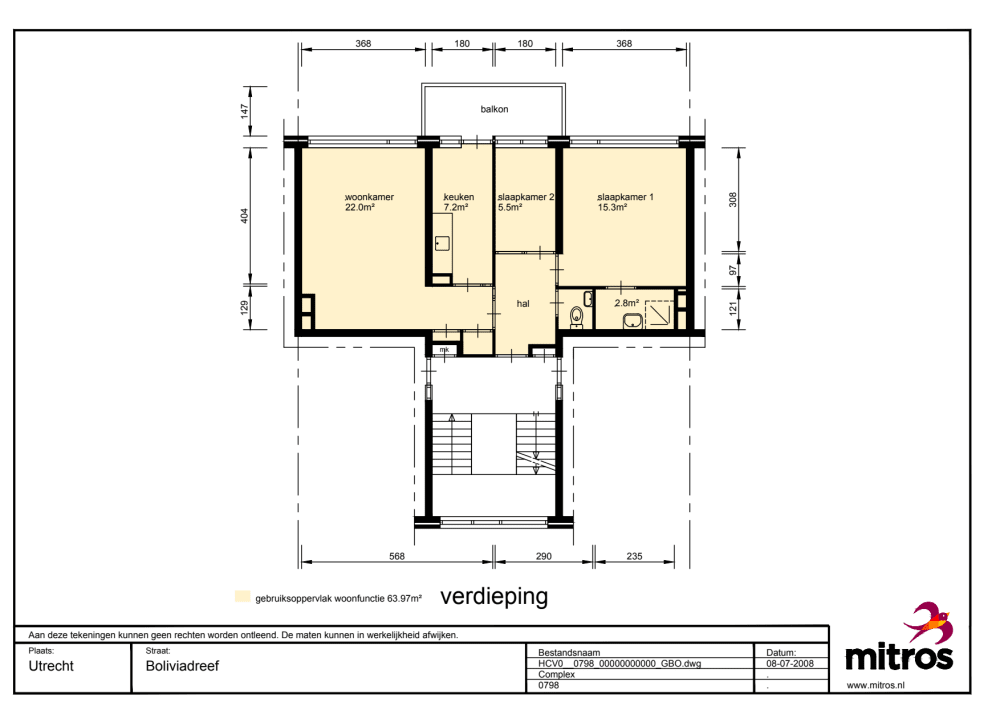
Area:
63 m2
Rooms:
3
Beds:
2
Waiting time:
(not set)
Date available:
Apr 27, 2026
Maximum income:
(not set)
Status:
Published
Respond

Property description

Omschrijving woningDriekamer appartement in de wijk Vechtzoom, Klopvaart. Het appartement ligt op de derde verdieping en heeft een balkon. Er is een berging. Er kan elektrisch worden gekookt.Omgeving woningOvervecht is de afgelopen jaren flink opgeknapt, een ruim opgezette, groene wijk met veel voorzieningen binnen handbereik. Zo zijn er diverse scholen, sportfaciliteiten, winkels en supermarkten in de directe omgeving. Openbaar vervoer is goed geregeld: zowel bus- als treinverbindingen zijn dichtbij, waardoor het centrum van Utrecht en andere delen van de stad gemakkelijk bereikbaar zijn. Daarnaast zijn de uitvalswegen A27 en A28 snel te bereiken.Bijzonderheden- Het plaatsen van een schotelantenne is niet toegestaan bij deze woning.- Overname: gratis laminaat

Map