Rental property Utrecht

Muylenborchdreef 59, Utrecht

Quick summary

Location
Utrecht
Rental price
€901.57
Property type
Tussenwoning
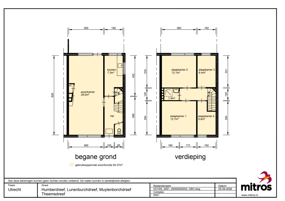
Area:
93 m2
Rooms:
5
Beds:
4
Waiting time:
(not set)
Date available:
Aug 18, 2025
Maximum income:
(not set)
Status:
Expired

Property description

Tussenwoning aan de Muylenborchdreef, in de wijk Overvecht. Deze eengezinswoning beschikt over een voor- en achtertuin. De achtertuin is gelegen op het westen en beschikt over een achterom.Indeling:Je komt binnen via de hal. De woning heeft 2 woonlagen en beschikt over een woonkamer, gesloten keuken waar u op gas kunt koken, 4 slaapkamers, een badkamer en een toilet.De woning wordt verwarmddoor middel van stadsverwarming. Er is een individuele berging aanwezig.Technische staat:Houd er rekening mee dat u zelf ook nog het een en ander moet doen om de woning naar uw smaak te maken. Denk daarbij aan het leggen van vloeren, behangen van muren en schilderwerk in de woning. In onze brochure “goed voorbereid een woning bezichtigen” leest u welke klussen voor uzelf zijn en welke Woonin voor u doet.Omgeving:Overvecht is de afgelopen jaren flink opgeknapt. Op loopafstand liggen diverse scholen, supermarkten, andere winkels en eet- en drinkgelegenheden. Daarnaast is Overvecht goed bereikbaar met het openbaar vervoer (NS Station Overvecht) en binnen 15 fietsminuten ben je in het centrum van Utrecht. Met de auto ben je binnen enkele minuten op de diverse uitvalswegen en de A27. In heel Overvecht is parkeren gratis.Bezichtiging:Kandidaten die in aanmerking komen voor de bezichtiging ontvangen na sluitingsdatum van de advertentie een uitnodiging met de datum en het tijdstip.BijzonderhedenLet op: het plaatsen van een schotelantenne is niet toegestaan bij deze woning.Energielabel:Er is op dit moment geen geldig energielabel van de woning aanwezig. Op het moment van oplevering van de woning is deze wel beschikbaar.BeeldmateriaalHelaas hebben wij weinig beeldmateriaal tot onze beschikking. Als u in aanmerking komt voor deze woning, dan kunt u de woning natuurlijk bezichtigen.

Map