Rental property Utrecht

Werradreef 21, Utrecht

Quick summary

Location
Utrecht
Rental price
€799.72
Property type
Appartement
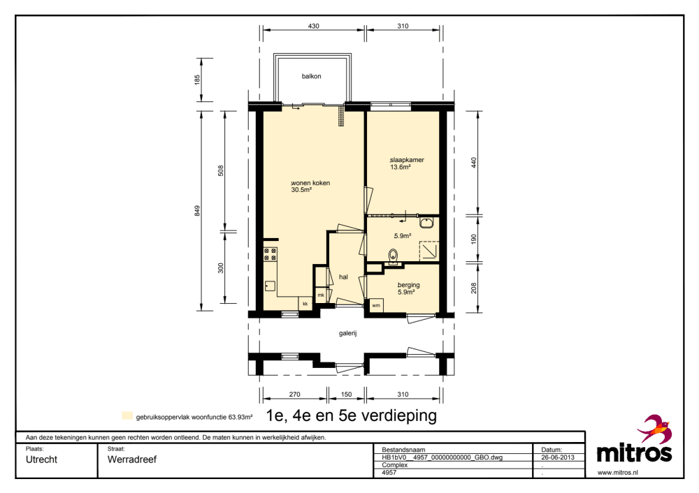
Area:
44 m2
Rooms:
2
Beds:
1
Waiting time:
(not set)
Date available:
Jan 26, 2026
Maximum income:
(not set)
Status:
Published
Respond

Property description

Omschrijving woningTweekamer appartement in de wijk Zamenhofdreef, Neckardreef. Het appartement ligt op de eerste verdieping en heeft een balkon. Er is een berging. Er kan elektrisch worden gekookt.Omgeving woningOvervecht is de afgelopen jaren flink opgeknapt, een ruim opgezette, groene wijk met veel voorzieningen binnen handbereik. Zo zijn er diverse scholen, sportfaciliteiten, winkels en supermarkten in de directe omgeving. Openbaar vervoer is goed geregeld: zowel bus- als treinverbindingen zijn dichtbij, waardoor het centrum van Utrecht en andere delen van de stad gemakkelijk bereikbaar zijn. Daarnaast zijn de uitvalswegen A27 en A28 snel te bereiken.Bijzonderheden- Het plaatsen van een schotelantenne is niet toegestaan bij deze woning.- Bij 65+ maximaal 2 personen: geen kinderen toegestaan. Bent u 50 jaar of jonger of met meer dan 2 personen, dankan er een intake plaatsvinden.- Het is mogelijk een parkeerplaats erbij te huren. De parkeerplaats kost €36 per maand en hiervoor wordt een aparthuurcontract afgesloten. Tijdens het acceptatieproces kan er worden aangegeven of hier interesse in is.

Map