Rental property Veenendaal

Cavansalaan 164, Veenendaal

Quick summary

Location
Veenendaal
Rental price
€906.88
Property type
Portiekwoning
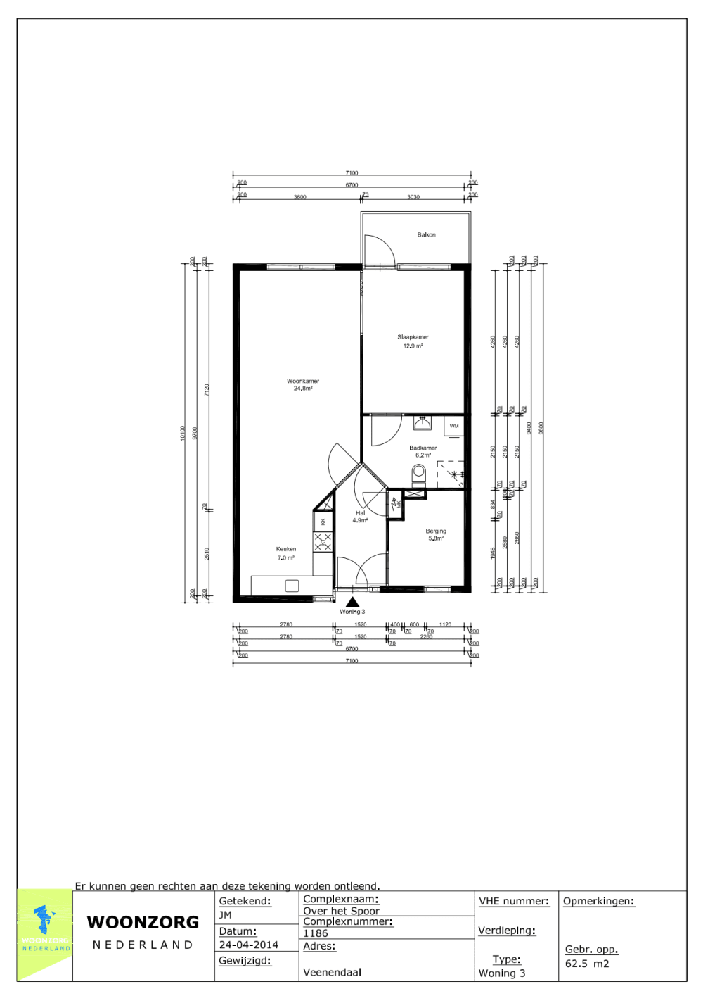
Area:
58 m2
Rooms:
2
Beds:
1
Waiting time:
(not set)
Date available:
Jun 1, 2026
Maximum income:
(not set)
Status:
Published
Respond

Property description

Let op! Alleen geschikt voor 55+ en huishoudens die alleen zijn of met twee personen en zonder kinderen.Betreft een woning op de 1e etage met uitzicht op de KerkewijkIn de wijk Franse Gat, dichtbij het sfeervolle en groene centrum van Veenendaal, bevindt zich het woonzorgcentrum Over het Spoor. In de directe omgeving van het woonzorgcentrum bevinden zich naast vele winkels ook diverse gezondheidsvoorzieningen en openbaar vervoer. In het woonzorgcentrum Over het Spoor heeft u de geborgenheid en privacy van uw eigen woning met de mogelijkheid het gezelschap te zoeken van gelijkgestemde mensen. In de ruime recreatieruimte worden door de activiteiten commissie diverse activiteiten georganiseerd. In het complex zijn ook een kapsalon en fysiotherapeut aanwezig.WoningomschrijvingHet wooncomplex Over het Spoor bestaat uit 94 tweekamer appartementen en 11 driekamer appartementen. De appartementen zijn rolstoeltoegankelijk en speciaal voor 55+. Alle woningen hebben een open keuken met ruime woonkamer, een slaapkamer, ruime badkamer en een inpandige berging. Huurt u een woning op de begane grond dan heeft u een terras, de woningen op de verdiepingen hebben een balkon. De driekamer-appartementen hebben 1 extra slaapkamer.De zekerheid van zorg in de directe nabijheidZelfstandig wonen en zorg en dienstverlening krijgen als u dat nodig heeft. Dat is wonen in het woonzorgcentrum Over het Spoor. Stichting Quarijn biedt diverse diensten om u als senior te ondersteunen bij wonen, welzijn en zorg.  In uw eigen huis met bijvoorbeeld alarmering of thuiszorg. U bent van harte welkom om in het woonzorgcentrum mee te eten of om mee te doen aan een activiteit. De medewerkers van Stichting QuaRijn zijn altijd in de buurt.QuaRijn heeft het Volledig Pakket Thuis (VPT) in Over het Spoor. Een VPT houdt in dat u zelfstandig woont en dat u toch de complete verzorgingshuiszorg krijgt. U kunt hierdoor langer in uw eigen vertrouwde omgeving blijven wonen. Het Volledig Pakket Thuis bevat: dagelijkse persoonlijke verzorging, verpleging, begeleiding in de dagstructuur en bij welzijnsactiviteiten en alarmering.De gemeenschappelijke voorzieningenGratis parkeren voor bewoners op privé parkeerplaats.Woningen gelijkvloers en met lift bereikbaarGemeenschappelijke fietsenberging.Tuin rondom de woningen.Er zijn afvalcontainers op de parkeerplaats aanwezig.Samen eten of meedoen aan activiteiten in het woonzorgcentrum.Zorg, hulp en begeleiding altijd in de buurtEen lifestyle gesprek kan onderdeel uitmaken van de procedure.

Map