Rental property Den Haag

Schaloenstraat 50, Den Haag

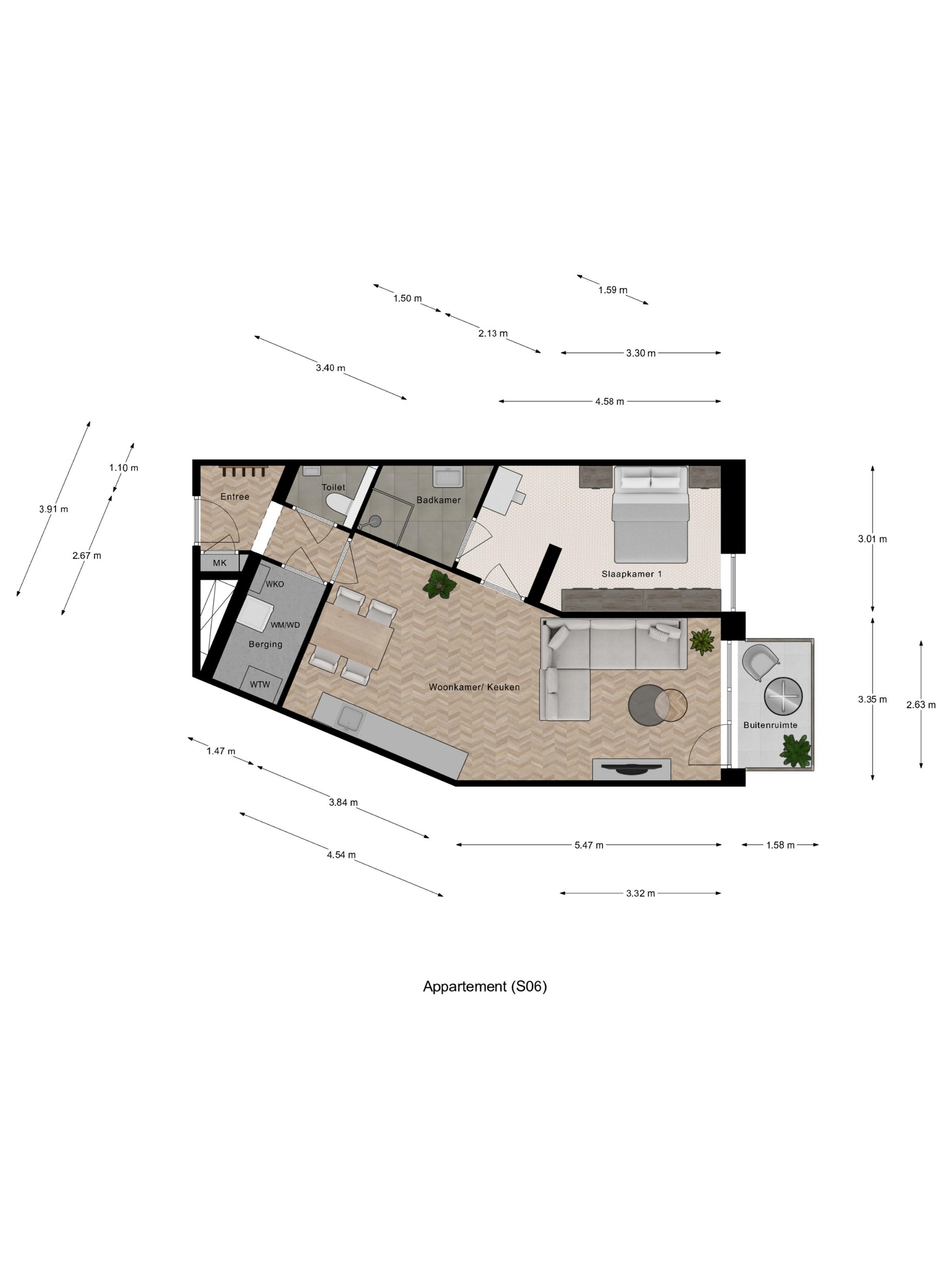
Quick summary

Location
Den Haag
Rental price
€655.81
Property type
Appartement
Area:
49 m2
Rooms:
2
Beds:
1
Waiting time:
(not set)
Date available:
Oct 15, 2025
Maximum income:
€39.055.00
Status:
Expired

Property description

**Let op:** Je kan voor deze woning **_WEL_** in aanmerking komen voor een parkeervergunning van de gemeente Den Haag. De woning bevindt zich op de derde etage. Voor informatie, plattegronden en foto's verwijzen wij je naar de [project site](https://mijn-schaloen.staedion.nl/aanbod/#/) van Staedion. Reageren op woningen is alleen mogelijk op Woonnet Haaglanden.

Map