Rental property Den Haag

Vissershavenstraat 239, Den Haag

Quick summary

Location
Den Haag
Rental price
€655.30
Property type
Appartement
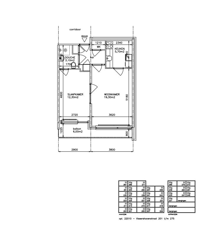
Area:
41 m2
Rooms:
2
Beds:
1
Waiting time:
(not set)
Date available:
Oct 10, 2025
Maximum income:
€39.055.00
Status:
Expired

Property description

**Samenwerkingsovereenkomst Staedion en Respect** Bewoners van de Visserhavenstraat kunnen gebruik maken van de services (kapsalon, pedicure etc) en extra faciliteiten van verpleeghuis Uiterjoon. De extra faciliteiten zijn oa: \- gebruik maken van de ruimten voor activiteiten (bijv verjaardag) \- gebruik maken van de paramedische en verpleegkundige en verzorgende dienst van Respect. \- meedoen aan evenementen en (bewegings-)activiteiten in Het Uiterjoon **Kenmerken woning:** **-** Etage: 3e **-** Soort verwarming: blokverwarming **-** Berging: extern **-** Toilet: in de hal **Woonomgeving:** **-** Wijk: **-** Afstand tot openbaar vervoer 240 meter **-** Afstand tot supermarkten 600 meter **-** Afstand tot strand 270 meter De minimum leeftijd voor deze woning is 65 jaar, ook voor de eventuele 2e bewoner. Indien de 2e persoon niet voldoet aan de minimale leeftijdseis, wordt u niet uitgenodigd voor de groepsbezichtiging. **Inschrijving met twee volwassenen** Als u met twee volwassenen ingeschreven staat, wordt u beide huurder van deze woning. Hiermee eindigt uw inschrijving(en) op Woonnet-Haaglanden. **Belangrijk om te weten:** Na de interessepeiling controleren wij uw inschrijving. Dit doen wij alleen als u nog interesse in de woning heeft. Om voor deze woning in aanmerking te komen moet u uw gegevens hebben ge pload op uw inschrijving. In de checklist: leest u om welke documenten het gaat. **Inloggen DigiD verplicht** U moet bij acceptatie van de woning inloggen met uw DigiD. Kunt u dit niet? Dan bieden wij de woning niet aan en wordt deze aangeboden aan de volgende kandidaat. Een creditcheck maakt onderdeel uit van de toewijzing. **Staat van de woning** Wij leveren iedere woning op met basiskwaliteit: schoon, veilig en heel. Houd er rekening mee dat u zelf nog wat aan de woning moet doen. Denk aan schilderen van de muren en plafonds, afstomen van behang en/ of het leggen van een vloer. **Parkeren** Voor het parkeerbeleid kunt u de gemeente Den Haag raadplegen: [Plattegronden en parkeerkosten - Den Haag](https://www.denhaag.nl/nl/parkeren/plattegronden-en-parkeerkosten/) [Parkeren - Den Haag](https://www.denhaag.nl/nl/parkeren/?utm_source=alias&utm_medium=offline&utm_campaign=parkeren) **De datum beschikbaarheid van deze woning kan nog veranderen.**

Map