Rental property Dordrecht

Noorderstraat 60, Dordrecht

Quick summary

Location
Dordrecht
Rental price
€727.20
Property type
Maisonnette
Area:
55 m2
Rooms:
3
Beds:
2
Waiting time:
(not set)
Date available:
Feb 5, 2026
Maximum income:
€39.055.00
Status:
Expired

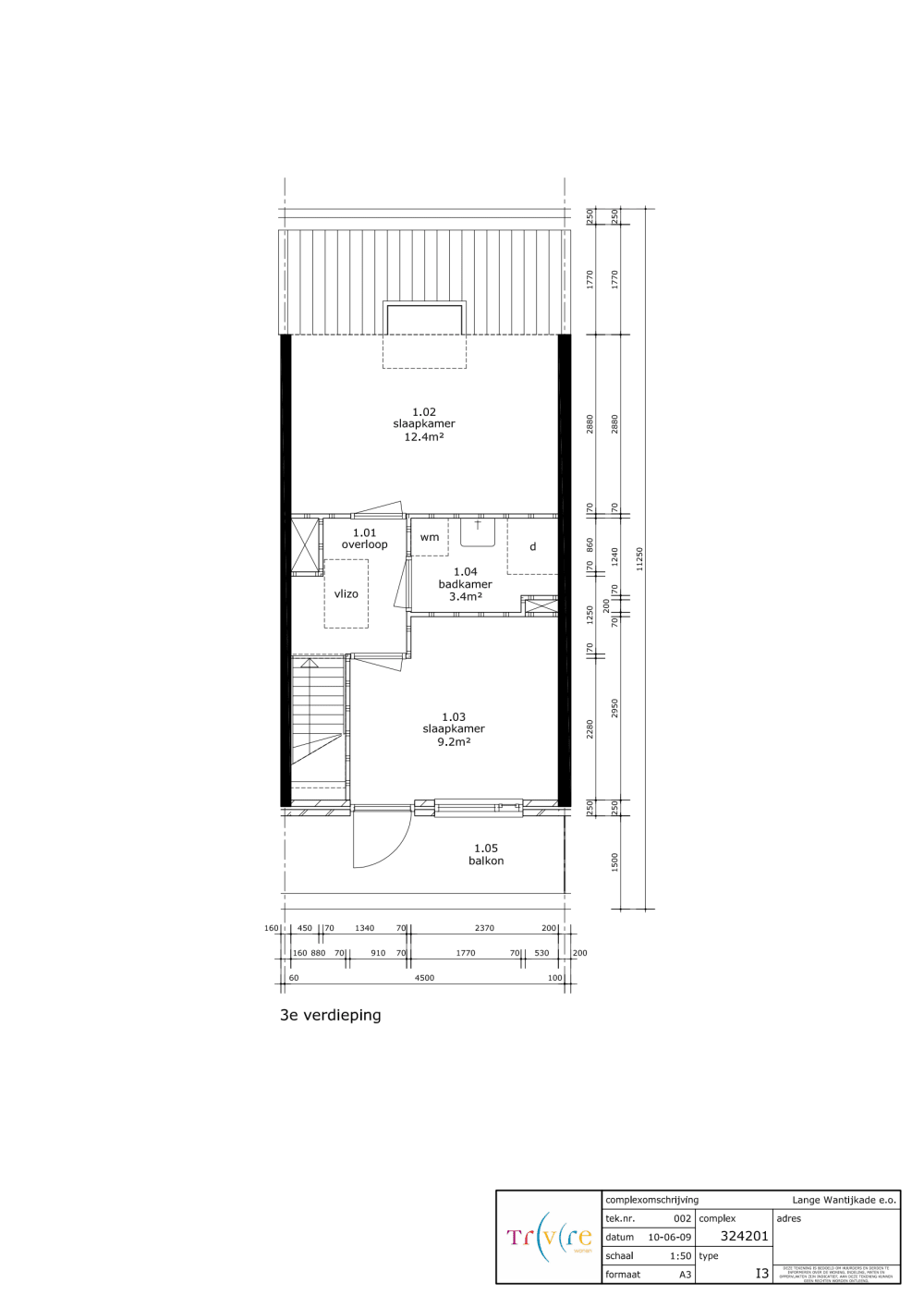
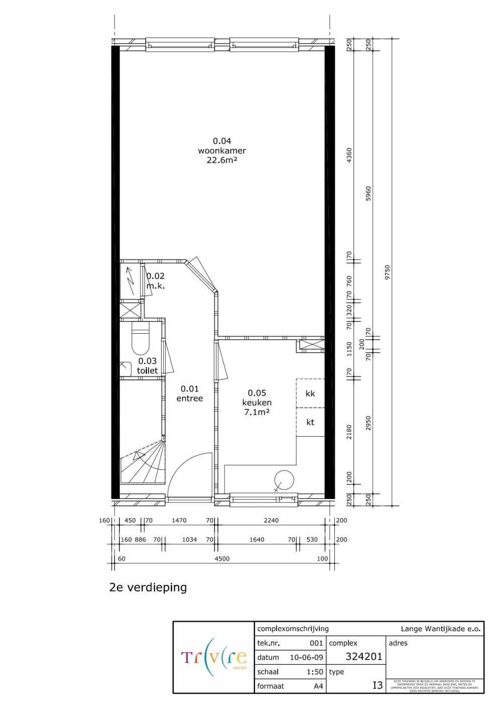
Property description

Leuke woning in het lijnbaangebied. De woning heeft cv, een gesloten keuken, een vlizotrap naar de zolder en een berging. Gelegen nabij winkels, scholen en openbaar vervoer. De badkamer en toilet zijn gerenoveerd.Een onderdeel van de woningtoewijzing is een screening op overlast gevend en crimineel gedrag (op grond van de Wet Bijzondere Maatregelen Grootstedelijke Problematiek). Werkt u hier niet aan mee of is het resultaat van de screening negatief, dan wordt de woning niet aan u verhuurd.De beschikbaarheidsdatum is onder voorbehoud.In verband met de jaarlijkse afrekening kan het voorschot van de servicekosten nog wijzigen.Wilt u reageren op deze woning, kijkt u dan eerst naar bijgevoegde plattegrond voor de woningindeling en de maten.LET OP! Controleer vooraf uw nieuwe termijnbedrag bij uw energieleverancier om onverwachte hoge kosten te voorkomen.

Map