Rental property Dordrecht

Palissander 363, Dordrecht

Quick summary

Location
Dordrecht
Rental price
€716.25
Property type
Tussenwoning
Area:
48 m2
Rooms:
2
Beds:
1
Waiting time:
(not set)
Date available:
Feb 20, 2026
Maximum income:
€39.055.00
Status:
Published
Respond

Property description

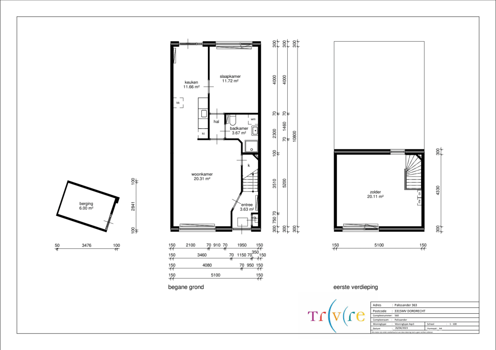
Mooie woning met een slaapkamer en badkamer op de begane grond en een zolderruimte op de 1e verdieping. De woning heeft een open keuken (koken op gas). Nabij winkels, uitvalswegen en openbaar vervoer.De badkamer en keuken worden gerenoveerd.Deze woning wordt met voorkeur aangeboden aan kandidaten met een leeftijd van 55 jaar en ouder. Kandidaten met een leeftijd van 55 jaar en ouder gaan altijd voor. De kandidaat met de meeste punten krijgt deze woning aangeboden. Als er geen kandidaten van 55 jaar en ouder meer zijn, dan wordt er voor de woning niet meer geselecteerd op aantal punten, maar op leeftijd. Dat wil zeggen: wie 54 jaar is, gaat voor op iemand van 53 jaar. Heeft u inwonende minderjarige kinderen? Dan bieden wij u deze woning niet aan.In verband met de jaarlijkse afrekening kan het voorschot van de servicekosten nog wijzigen.De beschikbaarheidsdatum is onder voorbehoud.Wilt u reageren op deze woning, kijkt u dan eerst naar bijgevoegde plattegrond voor de woningindeling en de maten.LET OP! Controleer vooraf uw nieuwe termijnbedrag bij uw energieleverancier om onverwachte hoge kosten te voorkomen.

Map