Rental property Hardinxveld-Giessendam

Schaepmanstraat 7, Hardinxveld-Giessendam

Quick summary

Location
Hardinxveld-Giessendam
Rental price
€713.02
Property type
Tussenwoning
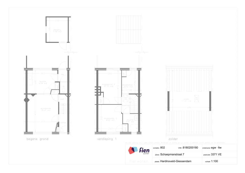
Area:
58 m2
Rooms:
4
Beds:
3
Waiting time:
(not set)
Date available:
Mar 3, 2026
Maximum income:
€39.055.00
Status:
Published
Respond

Property description

Leuke eengezinswoning in Beneden-Hardinxveld. Binnenkomst via de gang met toegang tot de woonkamer met open keuken. Apart gelegen toilet. De tuin is toegankelijk via de keuken. Op de verdieping liggen 3 slaapkamers en de badkamer. De woning is voorzien van een bergzolder, bereikbaar via vlizotrap. In de tuin staat een berging van ca. 8 m2.Vlakbij het centrum met winkels, scholen etc.Plattegrond kan iets afwijken.

Map