Rental property Hendrik-Ido-Ambacht

Tesselschadestraat 202, Hendrik-Ido-Ambacht

Quick summary

Location
Hendrik-Ido-Ambacht
Rental price
€742.08
Property type
Appartement
Area:
55 m2
Rooms:
2
Beds:
1
Waiting time:
(not set)
Date available:
Nov 24, 2025
Maximum income:
(not set)
Status:
Expired

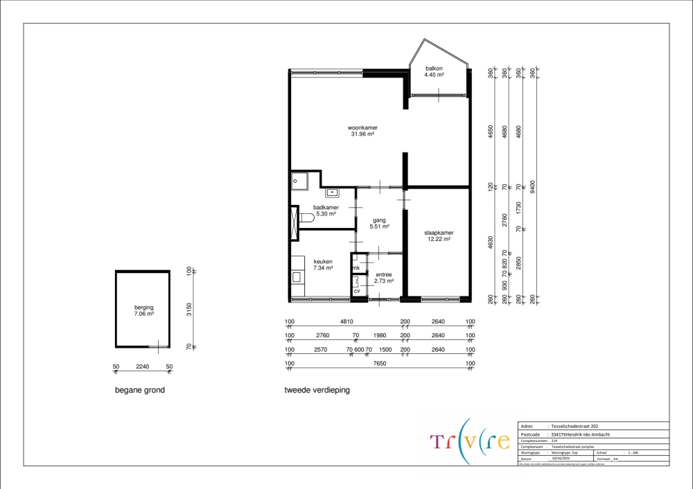
Property description

Mooi twee kamer appartement gelegen op de tweede verdieping. De woning is bereikbaar per lift en heeft een gesloten keuken met kookaansluiting op gas, een balkon en eigen berging op de begane grond. Winkels en openbaar vervoer in de directe omgeving.Er zijn diverse spullen ter overname.De woning ligt in een seniorencomplex, alle bewoners van dit complex zijn ouder dan 55 jaar. De woning is dan ook alleen geschikt voor een voor een 1- of een 2-persoonshuishouden. Heeft u inwonende minderjarige kinderen? Dan bieden wij u deze woning niet aan.De woning wordt met voorkeur aangeboden aan kandidaten met een leeftijd van 55 jaar en ouder. Kandidaten met een leeftijd van 55 jaar en ouder gaan altijd voor. De kandidaat met de meeste punten krijgt deze woning aangeboden. Als er geen kandidaten van 55 jaar en ouder meer zijn, dan wordt er voor de woning niet meer geselecteerd op aantal punten, maar op leeftijd. Dat wil zeggen wie 54 jaar is, gaat voor op iemand van 53 jaar.Wilt u reageren op deze woning, kijkt u dan eerst naar bijgevoegde plattegrond voor de woningindeling en de maten.De beschikbaarheidsdatum is onder voorbehoud.In verband met de jaarlijkse afrekening kan het voorschot van de servicekosten nog wijzigen.LET OP! Controleer vooraf uw nieuwe termijnbedrag bij uw energieleverancier om onverwachte hoge kosten te voorkomen.

Map