Rental property Nieuwerkerk aan den IJssel

Wolga 63, Nieuwerkerk aan den IJssel

Quick summary

Location
Nieuwerkerk aan den IJssel
Rental price
€808.06
Property type
Tussenwoning
Area:
68 m2
Rooms:
4
Beds:
3
Waiting time:
(not set)
Date available:
Sep 22, 2023
Maximum income:
(not set)
Status:
Expired

Property description

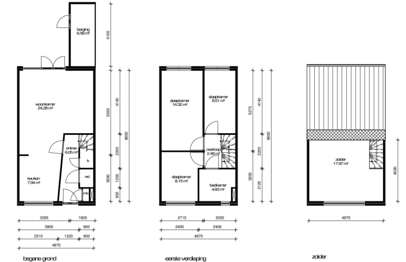
Nieuwerkerk aan den IJssel is een plaats in de gemeente Zuidplas op de rechteroever van de Hollandse IJssel, 10 km ten noordoosten van Rotterdam. Tot 1 januari 2010 was het een zelfstandige gemeente in de provincie Zuid-Holland. De plaats Nieuwerkerk aan den IJssel ligt voor een groot gedeelte in de Zuidplaspolder, en wordt door enkele gemalen drooggehouden. Bij Nieuwerkerk aan den IJssel horen ook de gemeenschappen Kortenoord en het aan de Hollandse IJssel gelegen Hitland met het gelijknamige natuurgebied. Nieuwerkerk aan den IJssel is praktisch aaneengegroeid met Capelle aan den IJssel op een 'groene strook' met weilanden na en tegenwoordig ligt de Rotterdamse vinexwijk Nesselande tegen de plaats aan, slechts gescheiden door de A20. De gemeenten Nieuwerkerk aan den IJssel, Moordrecht en Zevenhuizen-Moerkapelle vormen tegenwoordig samen de nieuwe gemeente: Zuidplas. Deze fusie was op 1 januari 2010 een feit. 4-kamer eengezinswoning. begane grond: entree, meterkast, toilet, woonkamer met open keuken. Via de woonkamer heeft u toegang tot de achtertuin. Eerste verdieping: overloop, 3 slaapkamers en badkamer met toilet. Zolderverdieping: via een vaste trap is de zolderverdieping te bereiken. Voor de achtertuin zullen we met u een apart tuincontract afsluiten. Onderhoud aan de tuin is verplicht. Overname In de woning is overname van de vorige huurder, waaronder een airco in de hoofdslaapkamer en op zolder. Wil de nieuwe huurder de goederen niet overnemen, dan zal de vorige huurder deze alsnog moeten verwijderen. Is de nieuwe huurder wel ge nteresseerd in de overname, dan zullen wij u in contact brengen met de vorige huurder om hier afspraken over te maken. Woonbron bemiddelt niet bij overnamekosten.

Map