Toggle navigation
Provinces
Noord-Brabant
Zuid-Holland
Noord-Holland
Gelderland
Limburg
Overijssel
Utrecht
Groningen
Friesland
Drenthe
Zeeland
Flevoland
Vlaams Gewest
Cities
Groningen
Tilburg
Den Haag
Utrecht
Middelburg
Amsterdam
Zaltbommel
Breda
Enschede
Apeldoorn
Heerlen
Zoetermeer
Alphen aan den Rijn
Almelo
Roosendaal
Home
Home
Social housing listing
Zuid-Holland
Zoetermeer
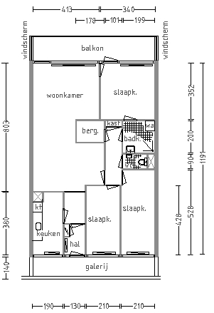
Alferbos 237
Rental property Zoetermeer
Alferbos 237,
Zoetermeer
Previous
Next
Quick summary
Location
Zoetermeer
Rental price
€678.88
Property type
Appartement
Area:
74 m
2
Rooms:
4
Beds:
3
Waiting time:
(not set)
Date available:
Oct 6, 2025
Maximum income:
€39.055.00
Status:
Expired
Property description
Map