Toggle navigation
Provinces
Noord-Brabant
Zuid-Holland
Noord-Holland
Gelderland
Limburg
Overijssel
Utrecht
Groningen
Friesland
Drenthe
Zeeland
Flevoland
Vlaams Gewest
Cities
Groningen
Amsterdam
Tilburg
Utrecht
Zaltbommel
Den Haag
Alphen aan den Rijn
Maastricht
Leeuwarden
Breda
Ede
Amersfoort
Dordrecht
Enschede
Almere
Home
Home
Social housing listing
Zuid-Holland
Zoetermeer
Hoevenbos 229
Rental property Zoetermeer
Hoevenbos 229,
Zoetermeer
Previous
Next
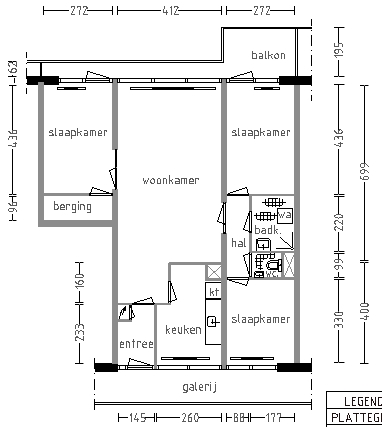
Quick summary
Location
Zoetermeer
Rental price
€731.94
Property type
Appartement
Area:
76 m
2
Rooms:
4
Beds:
3
Waiting time:
(not set)
Date available:
Aug 6, 2025
Maximum income:
€39.055.00
Status:
Expired
Property description
Map