Rental property Zoetermeer

Napelsgeel 17, Zoetermeer

Quick summary

Location
Zoetermeer
Rental price
€498.20
Property type
Benedenwoning
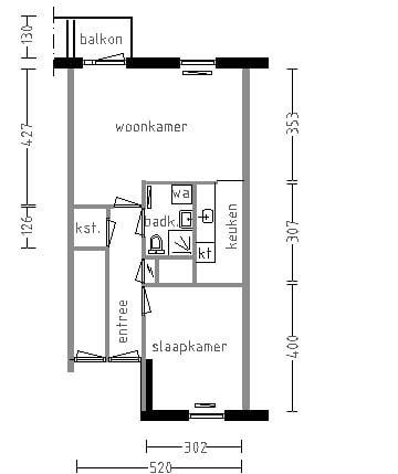
Area:
41 m2
Rooms:
2
Beds:
1
Waiting time:
(not set)
Date available:
Jan 27, 2026
Maximum income:
€39.055.00
Status:
Published
Respond

Property description

Leuk appartement met buitenruimte in een jongerencomplex in de wijk Rokkeveen. Nabij winkels, openbaar vervoer en uitvalswegen. Gratis parkeergelegenheid en een eigen berging. **Wanneer u zwanger bent en/of kind(eren) heeft komt u niet in aanmerking voor deze woning.** **Let op:** dit betreft een jongerencomplex, hier zal een tijdelijk contract voor worden afgesloten van maximaal 5 jaar. Wel zal de inschrijfduur behouden blijven zodat doorstroming plaats kan vinden.

Map