Rental property Zoetermeer

Poortugaalstraat 153, Zoetermeer

Quick summary

Location
Zoetermeer
Rental price
€713.02
Property type
Appartement
Area:
42 m2
Rooms:
2
Beds:
1
Waiting time:
(not set)
Date available:
Mar 24, 2026
Maximum income:
€39.055.00
Status:
Published
Respond

Property description

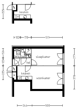
Leuke woning in een jongerencomplex in de gewilde wijk Oosterheem. De woning is voorzien van een open keuken waar u elektrisch kookt. Daarnaast heeft u een ruime slaapkamer en een eigen berging. Een frans balkon is onderdeel van de woning. Het parkeren is gratis in de wijk. De woning is gelegen in de buurt van randstadrail en winkels. **Wanneer u zwanger bent en/of kind(eren) heeft komt u niet in aanmerking voor deze woning.**

Map