Rental property Zoetermeer

Poortugaalstraat 316, Zoetermeer

Quick summary

Location
Zoetermeer
Rental price
€870.82
Property type
Appartement
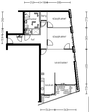
Area:
71 m2
Rooms:
3
Beds:
2
Waiting time:
(not set)
Date available:
Mar 4, 2025
Maximum income:
(not set)
Status:
Expired

Property description

Deze leuke seniorenwoning (55+) komt vrij in de gewilde wijk Oosterheem. Afgesloten entree met brievenbussen en bellentableau en entree van de woningen is inpandig. Op loopafstand vindt u de randstadrail en het uitgebreide winkelcentrum van Oosterheem. De ruim opgezette woningen met open keuken zijn voorzien van een aansluiting voor elektrisch koken en hebben allen een balkon als buitenruimte.

Map