Toggle navigation
Provinces
Noord-Brabant
Zuid-Holland
Noord-Holland
Gelderland
Limburg
Overijssel
Utrecht
Groningen
Friesland
Drenthe
Zeeland
Flevoland
Vlaams Gewest
Cities
Amsterdam
Groningen
Utrecht
Tilburg
Leiden
Den Haag
Heerlen
Leeuwarden
Almere
Breda
Zaandam
Hengelo
Dordrecht
Groessen
Alphen aan den Rijn
Home
Home
Social housing listing
Zuid-Holland
Zoetermeer
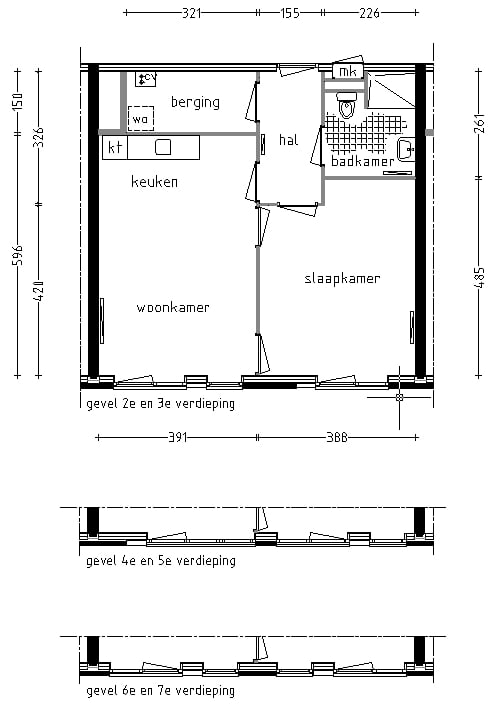
Rakkersveld 175
Rental property Zoetermeer
Rakkersveld 175,
Zoetermeer
Previous
Next
Quick summary
Location
Zoetermeer
Rental price
€682.96
Property type
Appartement
Area:
45 m
2
Rooms:
2
Beds:
1
Waiting time:
(not set)
Date available:
Feb 2, 2026
Maximum income:
€39.055.00
Status:
Published
Respond
Property description
Map