Rental property Zoetermeer

Rakkersveld 235, Zoetermeer

Quick summary

Location
Zoetermeer
Rental price
€682.96
Property type
Appartement
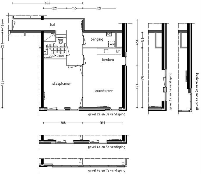
Area:
45 m2
Rooms:
2
Beds:
1
Waiting time:
(not set)
Date available:
Feb 28, 2025
Maximum income:
€39.055.00
Status:
Expired

Property description

In dit gezellige complex komt een leuke 2 kamer appartement vrij met een open keuken. Deze woningen hebben een frans balkon aan de achterzijde en een ruime galerij aan de voorzijde. De woning is gunstig gelegen. Met twee supermarkten en diverse andere leuke winkels en eetgelegenheden in de buurt woont u in het hart van de wijk Palenstein. De haltes van bus en randstadrail zijn op loopafstand en het parkeren is gratis in de hele omgeving.

Map