Toggle navigation
Provinces
Noord-Brabant
Zuid-Holland
Noord-Holland
Gelderland
Limburg
Overijssel
Utrecht
Groningen
Friesland
Drenthe
Zeeland
Flevoland
Vlaams Gewest
Cities
Groningen
Amsterdam
Utrecht
Zaltbommel
Tilburg
Enschede
Alphen aan den Rijn
Breda
Den Haag
Dordrecht
Hillegom
Almere
Leeuwarden
Papendrecht
Hoogezand
Home
Home
Social housing listing
Zuid-Holland
Zoetermeer
Rakkersveld 95
Rental property Zoetermeer
Rakkersveld 95,
Zoetermeer
Previous
Next
Quick summary
Location
Zoetermeer
Rental price
€682.96
Property type
Appartement
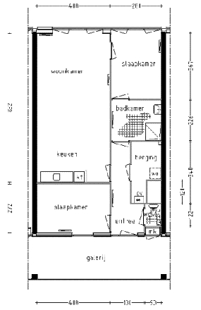
Area:
62 m
2
Rooms:
3
Beds:
2
Waiting time:
(not set)
Date available:
(not set)
Maximum income:
€39.055.00
Status:
Expired
Property description
Map