Rental property Zoetermeer

Sardinië 41, Zoetermeer

Quick summary

Location
Zoetermeer
Rental price
€932.93
Property type
Appartement
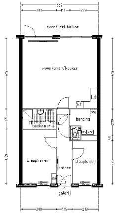
Area:
69 m2
Rooms:
3
Beds:
2
Waiting time:
(not set)
Date available:
Apr 7, 2026
Maximum income:
(not set)
Status:
Published
Respond

Property description

Leuk appartement komt vrij aan de rand van Oosterheem. De woning beschikt over een semi open keuken en is gelegen in een kindvriendelijke omgeving, nabij verschillende basisscholen en kinderopvang, kinderboerderij, het natuurgebied Bentwoud. Ook het uitgebreide winkelcentrum Oosterheem, Randstadrailstation en gezondheidscentrum bevinden zich op loopafstand.

Map