Rental property Zoetermeer

Voorhamstraat 41, Zoetermeer

Quick summary

Location
Zoetermeer
Rental price
€932.93
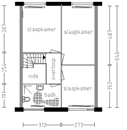
Property type
Eengezinswoning
Area:
75 m2
Rooms:
4
Beds:
3
Waiting time:
(not set)
Date available:
Feb 10, 2026
Maximum income:
(not set)
Status:
Published
Respond

Property description

Er komt een mooie eengezinswoning vrij in het hart van Palenstein. Dit zijn grote woningen waar in 2019 een renovatie heeft plaatsgevonden. Naast vervanging van de keuken, badkamer en toilet zijn deze woningen ook geschikt gemaakt voor nul op de meter. Van buiten is er een hele nieuwe ge soleerde gevel op de woning maar van binnen is het karakteristieke behouden. Houdt u daarom ook rekening met houten vloeren door de hele woning. De gezellige Dorpsstraat en het Stadshart liggen op enkele minuten lopen. Voor een heerlijke wandeling kunt u terecht in het mooie Wilhelminapark. Naast de huur en de normale servicekosten zal De Goede Woning ook een energieprestatie vergoeding (EPV) in rekening brengen. Hiervoor tekent u een apart contract. Deze vergoeding betaalt u aan De Goede Woning omdat u op jaarbasis (bij normaal gebruik) geen energielasten meer heeft. De door de zonnepanelen opgewekte elektra is voldoende voor het verwarmen van de woning, het warmtapwater en het gebruik gebonden elektra (waaronder: koelkast/ tv/ elektrisch koken).

Map